52 900€
508 700€
- €
508 700€
- €
Type
Appt. au 2ème
Appt. au 2ème
Pièces
T4
T4
Surface
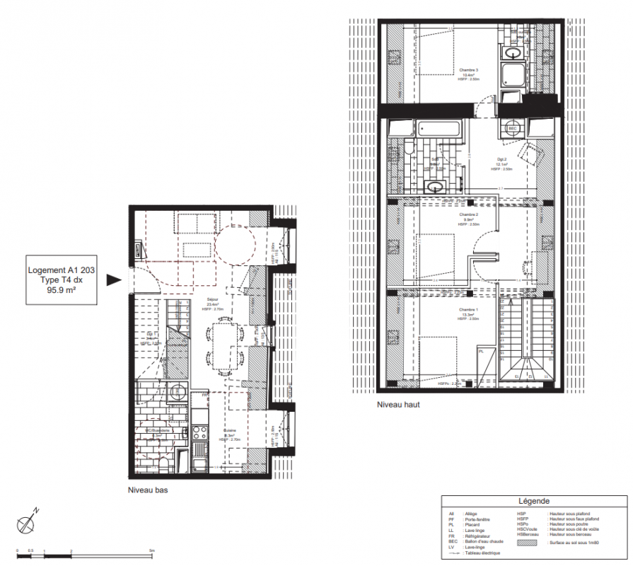
95.9 m²
95.9 m²
Exposition
-
-
Ville
Blois (41000)
Blois (41000)
Livraison
4ème trimestre 2027
4ème trimestre 2027
Informations
01 81 80 39 10
01 81 80 39 10
Présentation du programme "HOTEL DIEU"
À Blois, l’Hôtel-Dieu du XIIIe siècle, a su au fil des années garder son élégance architecturale. Afin de sauvegarder ce joyau du patrimoine français, Histoire & Patrimoine réhabilite ce magnifique site et va y aménager 97 logements. Éligible aux dispositifs fiscaux Monument Historique et Malraux, investir à l’Hôtel-Dieu vous permettra de faire fructifier votre patrimoine tout en accomplissant une mission d’intérêt général.
Autres logements T4 du programme "HOTEL DIEU"
| Disponibilité | Prix | No | Genre | Pièces | Surface | Étage | Disponibilité | Prix | ||
|---|---|---|---|---|---|---|---|---|---|---|
| Voir | Disponible | 564 100€ | A.011 | Appt. | T4 | 93.6m2 | 0-RDC | Disponible | 564 100€ Prix foncier 51 600€ Prix travaux 496 500€ | Voir |
| Voir | Optionné | 569 700€ | A4.106 | Appt. | T4 | 89m2 | 1er | Optionné Mais pas encore vendu 😉 | 569 700€ Prix foncier 52 100€ Prix travaux 501 600€ | Voir |
| Voir | Disponible | 523 900€ | A3.107 | Appt. | T4 | 77.1m2 | 1er | Disponible | 523 900€ Prix foncier 47 800€ Prix travaux 460 100€ | Voir |