335 417€
Appt. au 0-RDC
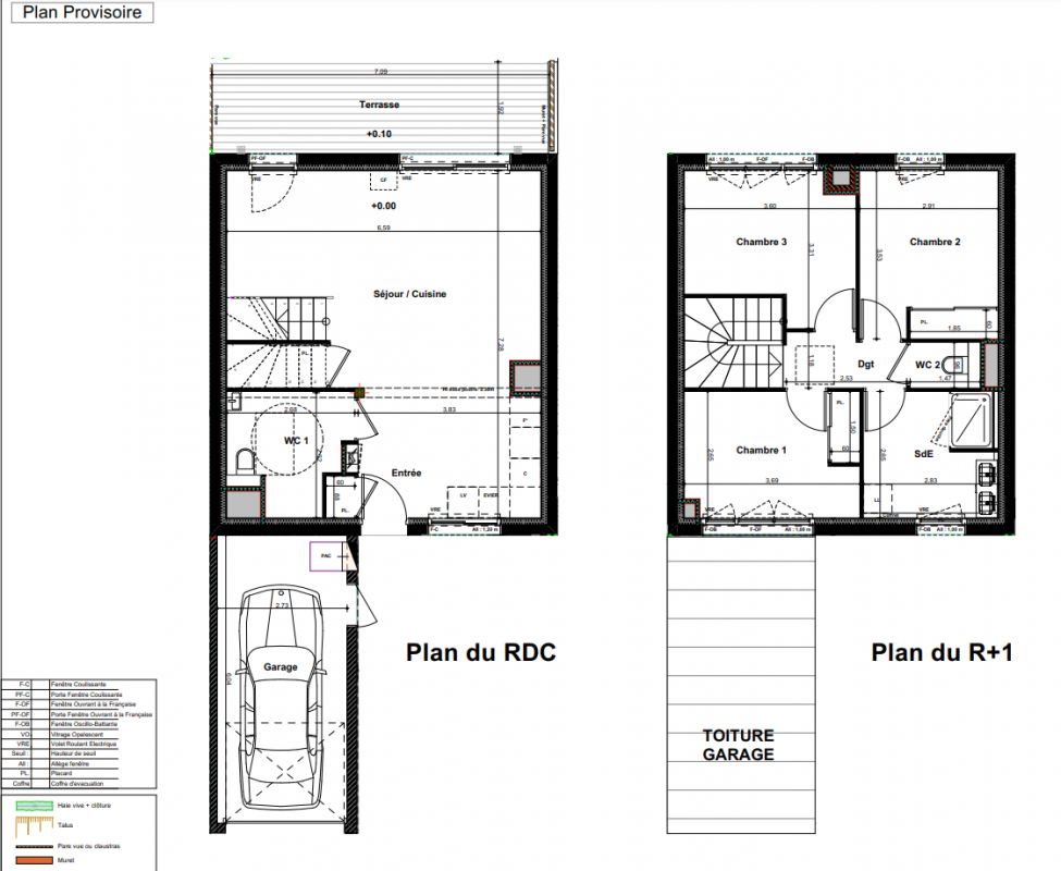
T4
84.94 m²
Ouest
Montgermont (35760)
1er trimestre 2027
01 81 80 39 10
Présentation du programme "VILLAS GABRIELLE"
OFFRE DE LANCEMENT : FRAIS DE NOTAIRE OFFERTS*
NOUVEAUTÉ À MONTGERMONT
Aux portes de Rennes, dans la commune dynamique de Montgermont, VILLAS GABRIELLE vous propose 14 MAISONS 4, 5 ET 6 PIÈCES : Maisons individuelles prêtes à vivre de 84 à 120 m², Jardin clos, paysager et terrasse en bois, garage ou cellier et parking extérieur, pompe à chaleur pour un mode de chauffage économe en énergie et respectueux de l'environnement, orientations optimisées, logements RE2020 pour un confort thermique été comme hiver et des économies au quotidien !
Intégré dans son environnement, VILLAS GABRIELLE bénéficie d'une architecture soignée et d'un emplacement privilégié à proximité du bourg et des commerces de Montgermont. La commune est très agréable pour les familles, avec écoles, équipements sportifs et services de proximité.
Elle est desservie par les lignes de bus 52 (arrêt à 5 min à pied) et 68 du réseau STAR, qui permettent de rejoindre Rennes – Villejean Université en 15 minutes et relient les communes voisines comme La Chapelle-des-Fougeretz ou Pacé. Plusieurs lignes scolaires complètent l’offre de transports.
La proximité de la voie rapide Rennes – Saint-Brieuc (RN12) et de la rocade rennaise permet aussi de rejoindre facilement les grands axes et les zones d’emploi de la métropole.
Contactez-nous pour avoir toutes les informations : Camille SAPÈNE au 06 88 02 97 41 // Jérôme DEJAN au 06 88 96 74 44 // arc35@groupearc.fr
*Hors frais d'acte de prêts et d'établissement du règlement de copropriété, réservée aux 5 premiers réservataires.
Autres logements T4 du programme "VILLAS GABRIELLE"
| Disponibilité | Prix | No | Genre | Pièces | Surface | Étage | Disponibilité | Prix | ||
|---|---|---|---|---|---|---|---|---|---|---|
| Voir | Disponible | 340 417€ | M-11 | Appt. | T4 | 84.75m2 | 0-RDC | Disponible | 340 417€ | Voir |
| Voir | Disponible | 332 917€ | M-04 | Appt. | T4 | 84.53m2 | 0-RDC | Disponible | 332 917€ | Voir |
| Voir | Disponible | 346 250€ | M-10 | Appt. | T4 | 84.46m2 | 0-RDC | Disponible | 346 250€ | Voir |
| Voir | Disponible | 337 083€ | M-12 | Appt. | T4 | 84.75m2 | 0-RDC | Disponible | 337 083€ | Voir |
| Voir | Disponible | 329 583€ | M-02 | Appt. | T4 | 84.49m2 | 0-RDC | Disponible | 329 583€ | Voir |
| Voir | Disponible | 342 917€ | M-07 | Appt. | T4 | 84.87m2 | 0-RDC | Disponible | 342 917€ | Voir |