187 800€ (TVA 20%)
165 108€ (TVA 5.5%)
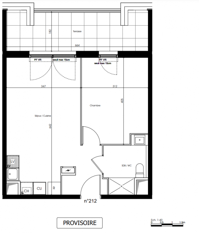
Appt. au 2ème
T2
40.86 m²
Nord
Orange (84100)
3ème trimestre 2027
01 81 80 39 10
Présentation du programme "Programme neuf Orange (84100)"
NOUVEAU à Programme neuf Orange (84100)NGE ! Soyez parmi les premiers à choisir votre appartement neuf avec extérieur et parking. En en plus avec la TVA réduite à 5,5%, devenez propriétaire pour le même prix que votre loyer !Située au cœur du Vaucluse, Programme neuf Orange (84100)nge est une ville dynamique et chargée d’histoire. Connue pour son patrimoine romain exceptionnel, notamment son célèbre théâtre antique classé à l’UNESCO, elle offre un cadre de vie agréable mêlant culture et douceur provençale. Deuxième ville la plus peuplée du département, elle bénéficie d’une excellente accessibilité grâce à sa proximité avec les autoroutes A7 et A9 ainsi qu’une gare SNCF permettant de rejoindre facilement les grandes métropoles avoisinantes. Son centre-ville accessible en 5 min* en voiture, regroupe de nombreux commerces, services et infrastructures essentielles. Notre nouvelle résidence, parfaitement implantée dans un environnement pavillonnaire, offre un cadre de vie paisible et verdoyant tout en étant à proximité immédiate de tous les essentiels. Supermarchés, pharmacie, gare et hôpital se trouvent dans un rayon de 5 min*. Les familles apprécieront la proximité des établissements scolaires, notamment l’école maternelle de la Croix Rouge à 10 min* à pied et le lycée polyvalent de l’Arc à 12 min*. Composée d’un seul bâtiment à l’architecture authentique et élégante, la résidence propose des appartements allant du 2 au 4 pièces, chacun bénéficiant d’un espace extérieur privatif, qu’il s’agisse d’un balcon ou d’une terrasse. Pensée pour offrir un confort optimal, elle s’intègre harmonieusement dans son environnement résidentiel en proposant un cadre de vie serein et privilégié. Avec des places de stationnement extérieures et des aménagements paysagers soignés, cette résidence est une opportunité unique d’investir ou vivre dans un cadre de vie exceptionnel. Contactez dès maintenant un de nos conseillers pour découvrir tous nos appartements neufs à Programme neuf Orange (84100)NGE et pour être parmi les premiers à choisir le logement de vos rêves.
Autres logements T2 du programme "Programme neuf Orange (84100)"
| Disponibilité | Prix | No | Genre | Pièces | Surface | Étage | Disponibilité | Prix | ||
|---|---|---|---|---|---|---|---|---|---|---|
| Voir | Disponible | 179 900€ | 102 | Appt. | T2 | 39.43m2 | 1er | Disponible | 179 900€ | Voir |
| Voir | Disponible | 178 700€ | 108 | Appt. | T2 | 38.9m2 | 1er | Disponible | 178 700€ | Voir |
| Voir | Disponible | 182 200€ | 109 | Appt. | T2 | 39.44m2 | 1er | Disponible | 182 200€ | Voir |
| Voir | Disponible | 186 700€ | 110 | Appt. | T2 | 40.86m2 | 1er | Disponible | 186 700€ | Voir |
| Voir | Disponible | 178 700€ | 113 | Appt. | T2 | 40.86m2 | 1er | Disponible | 178 700€ | Voir |
| Voir | Disponible | 177 600€ | 114 | Appt. | T2 | 40.54m2 | 1er | Disponible | 177 600€ | Voir |
| Voir | Disponible | 189 000€ | 202 | Appt. | T2 | 39.43m2 | 2ème | Disponible | 189 000€ | Voir |
| Voir | Disponible | 185 600€ | 205 | Appt. | T2 | 38.9m2 | 2ème | Disponible | 185 600€ | Voir |
| Voir | Disponible | 186 700€ | 207 | Appt. | T2 | 38.9m2 | 2ème | Disponible | 186 700€ | Voir |
| Voir | Disponible | 187 800€ | 208 | Appt. | T2 | 38.9m2 | 2ème | Disponible | 187 800€ | Voir |
| Voir | Disponible | 185 600€ | 213 | Appt. | T2 | 40.54m2 | 2ème | Disponible | 185 600€ | Voir |