Ce lot n’est plus disponible chez VIANOVA ou est vendu.

Vous pouvez revenir dans 24h pour vérifier le stock à jour ou contacter un conseiller Vianova pour vérifier le stock en direct.
Vous pouvez également continuer votre recherche sur notre site « ici ».

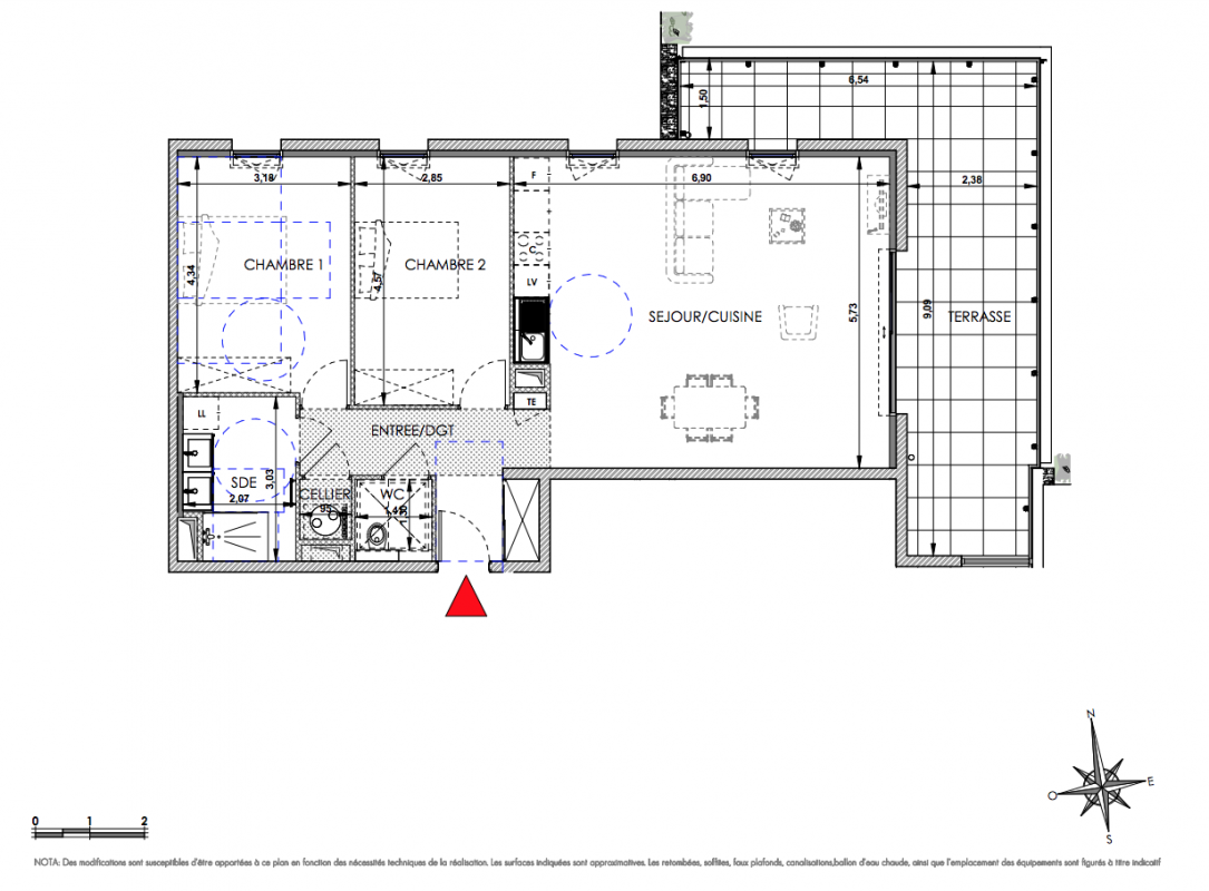
Prix
643 000€
Type
Appt. au 2ème
Pièces
T3
Surface
82.7 m²
Exposition
-
Ville
Aix-en-Provence (13080)
Livraison
4ème trimestre 2026
Informations
01 81 80 39 10

Présentation du programme "Domaine de l'Oratoire"

Les villas T4 et T5 bénéficient d'un grand terrain avec piscine et possibilité d'ajouter un jacuzzi, ainsi que d'un garage et de stationnements extérieurs.
Les logements collectifs sont tous traversants ou bi-orientés pour un confort optimal.

Autres logements T3 du programme "Domaine de l'Oratoire"

Disponibilité Prix Genre Pièces Surface Étage
Voir
Disponible
425 000€ Appt. T3 65m2 1er
Voir
Disponible
430 000€ Appt. T3 68.8m2 1er
DO NOT CLICK