139 674€
Appt. au 5ème
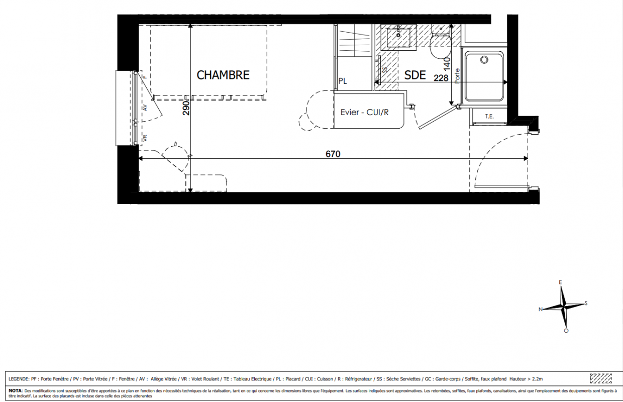
Studio
18.32 m²
Nord
Angers (49000)
1er trimestre 2024
01 81 80 39 10
Présentation du programme "Studio 142"
Découvrez la maquette 3D du programme en cliquant ici Investissez à Angers, une ville étudiante dynamique au cœur de la Loire !Ville universitaire de premier plan, 3e pôle d’enseignement supérieur du Grand Ouest avec 46 000 étudiants.Qualité de vie remarquable : ville régulièrement classée parmi les plus agréables et les plus vertes de France.Localisation stratégique à 1h30 de Paris en train, avec un maillage de transports performant. Une cité universitaire vivante au sein d’un territoire attractifOffre éducative complète : 2 universités, 4 campus et des écoles réputées (ESSCA, ISTOM, ESAIP, ESEO).Forte attractivité locative grâce à une demande étudiante soutenue et un cadre propice aux études et à la détente.Commodités et transportsUn réseau de transports en commun développé : Tramway lignes B et C (arrêt Belle-Beille Campus) à 4 min à pied et bus lignes 6, 301 et E20 vers la gare d’Angers Saint-Laud en 13 min.Campus Belle-Beille, ESSCA, ISTOM, et autres établissements à moins de 10 min à pied.Commerces de proximité : boulangerie, supérette, pharmacie et centre médical accessibles à pied. Focus prestations/résidenceUne résidence à l’architecture contemporaine, élégante et sobre, parfaitement intégrée dans son environnement.Des studios meublés et équipés : coin nuit, espace bureau ergonomique, kitchenette fonctionnelle, salle d’eau complète.Des espaces communs de qualité : espace coworking, salle de sport, salon multimédia, cafétéria ouverte sur un cœur d’îlot paysager, laverie, terrasse aménagée sur le toit pour des moments de détente en plein air.Le + du programmeUn emplacement idéal pour des étudiants ou jeunes actifs avec un accès facile au centre-ville, aux transports, services, infrastructures culturelles et sportives, ainsi qu’aux écoles et universités.
Autres logements Studio du programme "Studio 142"
| Disponibilité | Prix | No | Genre | Pièces | Surface | Étage | Disponibilité | Prix | ||
|---|---|---|---|---|---|---|---|---|---|---|
| Voir | Disponible | 136 136€ | B202 | Appt. | Studio | 18.32m2 | 2ème | Disponible | 136 136€ | Voir |
| Voir | Disponible | 136 263€ | B123 | Appt. | Studio | 18.4m2 | 1er | Disponible | 136 263€ | Voir |
| Voir | Disponible | 144 000€ | B501 | Appt. | Studio | 18.32m2 | 5ème | Disponible | 144 000€ | Voir |
| Voir | Disponible | 144 284€ | B422 | Appt. | Studio | 18.4m2 | 4ème | Disponible | 144 284€ | Voir |