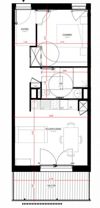
195 000€ (TVA 20%)
171 438€ (TVA 5.5%)
Appt. au 2ème
T2
41.37 m²
Sud-Ouest
Saint-Nazaire (44600)
1er trimestre 2028
01 81 80 39 10
Présentation du programme "Villas Conti"
Accéder à la maquette 3D de Villas Conti Située Boulevard Emile Broodcoorens, Villas Conti est composée de deux bâtiments à taille humaine, regroupant 46 appartements du 2 au 4 pièces. L’architecture contemporaine, sobre et élégante, s’intègre parfaitement dans son environnement urbain grâce à des matériaux de qualité et une réflexion paysagère favorisant la biodiversité. Les logements offrent des volumes généreux, une belle luminosité naturelle (triple orientation ou traversants), et des espaces extérieurs variés : balcons, loggias, terrasses ou jardins privatifs.Proximité immédiate de la mer : plages accessibles en moins de 10 min à vélo De nombreuses aménités aux alentours (école primaire, piscine, gymnase, commerces, bibliothèque) Quartier en pleine évolution, à proximité de l’université et du centre commercial Océanis Mobilité facilitée : lignes de bus Hélyce, pistes cyclables, gare TER-TGV à 5,2 km Architecture contemporaine et intégrée à l’environnement Éligibilité TVA réduite 5,5 %, PTZ LLI avec TVA 10%Espaces extérieurs : balcon, loggia, terrasse ou jardin privatif Locaux vélos en rez-de-chaussée et en sous-sol Parking souterrainPerformance énergétique conforme à la RE 2020À pied : École maternelle, boulangerie, pharmacie, supermarché, marché, gymnase, bibliothèque et piscine à 5 minCentre commercial Océanis à 10 minLigne Hélyce 1 à 8 min, Hélyce 2 à 12 min (dès fin 2025)En train : Gare de Saint-Nazaire à 5,2 kmNantes en 34 minParis Montparnasse en 2h58En voiture : Centre-ville de Saint-Nazaire à 4 kmNantes à 63 km via N171/N165En avion : Aéroport Nantes Atlantique à 66 km
Autres logements T2 du programme "Villas Conti"
| Disponibilité | Prix | No | Genre | Pièces | Surface | Étage | Disponibilité | Prix | ||
|---|---|---|---|---|---|---|---|---|---|---|
| Voir | Disponible | 187 000€ | A102 | Appt. | T2 | 43.78m2 | 1er | Disponible | 187 000€ | Voir |
| Voir | Disponible | 185 000€ | A103 | Appt. | T2 | 43.87m2 | 1er | Disponible | 185 000€ | Voir |
| Voir | Disponible | 189 000€ | A104 | Appt. | T2 | 45.17m2 | 1er | Disponible | 189 000€ | Voir |
| Voir | Disponible | 190 000€ | A202 | Appt. | T2 | 43.78m2 | 2ème | Disponible | 190 000€ | Voir |
| Voir | Disponible | 189 000€ | A203 | Appt. | T2 | 43.87m2 | 2ème | Disponible | 189 000€ | Voir |
| Voir | Disponible | 193 000€ | A204 | Appt. | T2 | 44.24m2 | 2ème | Disponible | 193 000€ | Voir |
| Voir | Disponible | 184 000€ | A205 | Appt. | T2 | 41.69m2 | 2ème | Disponible | 184 000€ | Voir |
| Voir | Disponible | 194 000€ | A302 | Appt. | T2 | 43.78m2 | 3ème | Disponible | 194 000€ | Voir |
| Voir | Disponible | 193 000€ | A303 | Appt. | T2 | 43.87m2 | 3ème | Disponible | 193 000€ | Voir |
| Voir | Disponible | 175 000€ | B002 | Appt. | T2 | 41.37m2 | 0-RDC | Disponible | 175 000€ | Voir |
| Voir | Disponible | 192 000€ | B102 | Appt. | T2 | 41.37m2 | 1er | Disponible | 192 000€ | Voir |
| Voir | Disponible | 192 000€ | B103 | Appt. | T2 | 41.37m2 | 1er | Disponible | 192 000€ | Voir |
| Voir | Disponible | 195 000€ | B202 | Appt. | T2 | 41.37m2 | 2ème | Disponible | 195 000€ | Voir |
| Voir | Disponible | 199 000€ | B302 | Appt. | T2 | 41.37m2 | 3ème | Disponible | 199 000€ | Voir |