Prix
268 000€
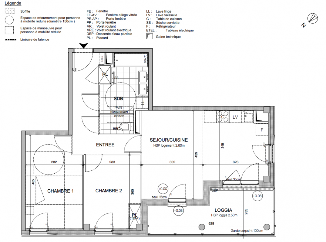
Type
Appt. au 0-RDC
Pièces
T3
Surface
63.55 m²
Exposition
-
Ville
Nantes (44000)
Livraison
4ème trimestre 2024
Informations
01 81 80 39 10

Présentation du programme "COEUR BOISE"


Choix parmi une sélection de revêtements de sols stratifié ou souple dans les pièces de vie et les chambres
Plusieurs harmonies de faïence dans les pièces d'eau
Menuiseries mixtes en PVC et aluminium thermolaqué
Volets roulants électriques dans les séjours et cuisines
Salles de bains et salles d'eau équipées de meubles vasques avec miroirs, appliques lumineuses et sèche-serviettes électriques
Placard dans chaque entrée
Production d'eau chaude et chauffage par chaufferie bois 
Résidence sécurisée : accès Vigik et vidéophone mains-libres
Véhicules disponibles en auto-partage
Un stationnement en sous-sol par logement
Local à vélos, poussettes et trottinettes dans chaque bâtiment 
Ascenseur dans chaque bâtiment desservant le parking et les étages
Jardins engazonnés, avec haie et arbres

Autres logements T3 du programme "COEUR BOISE"

Pas de logements disponibles
DO NOT CLICK