Prix
279 000€
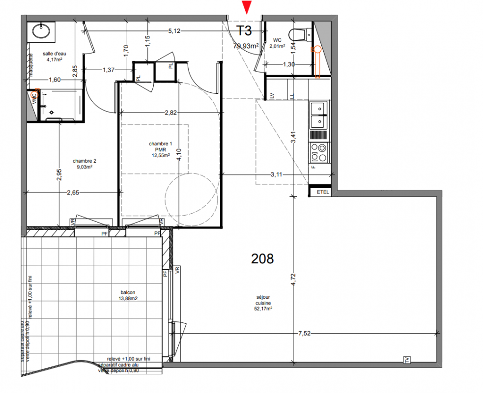
Type
Appt. au 0-RDC
Pièces
T3
Surface
86.87 m²
Exposition
Nord-Ouest
Ville
Agde (34300)
Livraison
1er trimestre 2026
Informations
01 81 80 39 10

Présentation du programme "ONYX"

Un emplacement de 1er choixUne architecture élégante et moderneDes appartements à la conception unique

Autres logements T3 du programme "ONYX"

Disponibilité Prix Genre Pièces Surface Étage
Voir
Disponible
223 000€ Appt. T3 65.74m2 0-RDC
Voir
Disponible
282 000€ Appt. T3 86.87m2 0-RDC
DO NOT CLICK