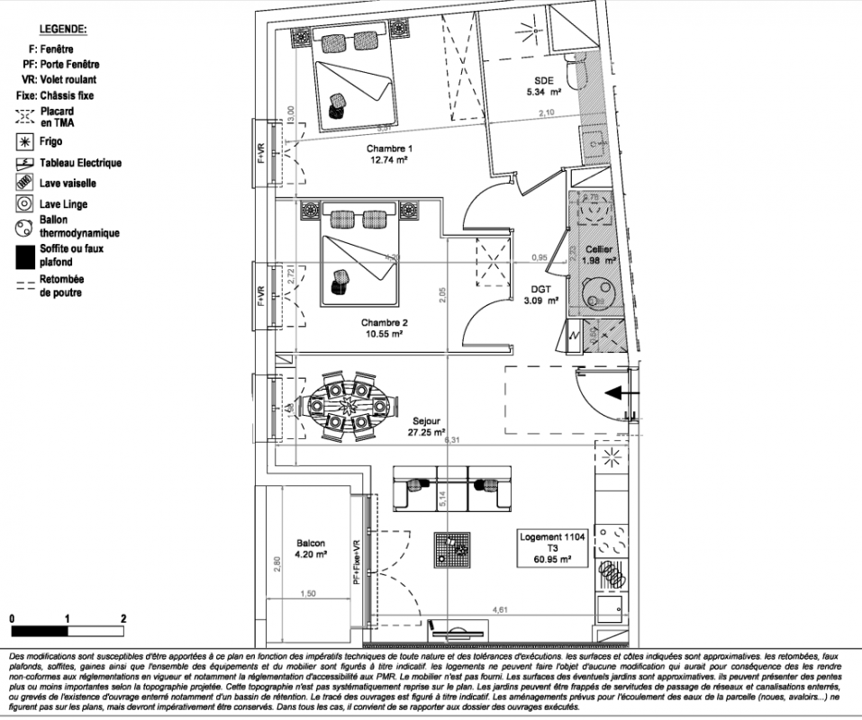
Prix
165 000€
165 000€
Type
Appt. au 1er
Appt. au 1er
Pièces
T3
T3
Surface
60 m²
60 m²
Exposition
Nord-Est
Nord-Est
Ville
Tarbes (65000)
Tarbes (65000)
Livraison
1er trimestre 2025
1er trimestre 2025
Informations
01 81 80 39 10
01 81 80 39 10
Présentation du programme "RESIDENCE LAMARTINE"
Nouveau à TarbesDécouvrez notre nouvelle résidence idéalement située en plein centre de Tarbes.Avec seulement 5 lots à la vente en 2 et 3 pièces tous situés au 1er étage, cette résidence vous offrira confort, modernité et accessibilité. Implantée dans l'une des meilleures adresses de Tarbes, la résidence Lamartine bénéficie d'un emplacement premium, face aux Halles Brauhauban. Un cadre de vie recherché, alliant animation urbaine, confort quotidien et valeur patrimoniale durable.