499 000€
Appt. au 1er
-
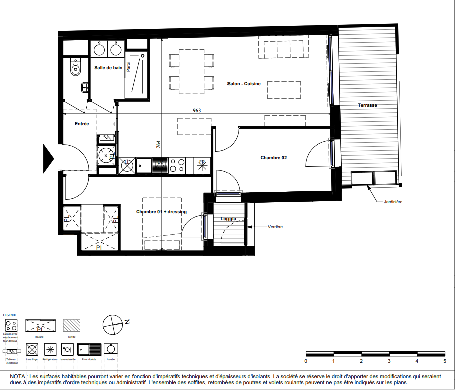
60.8 m²
-
Toulouse (31000)
3ème trimestre 2027
01 81 80 39 10
Présentation du programme "PRELUDE"
Programme immobilier neuf à Toulouse 31 000 - Prélude
Implantée en coeur d'îlot, la résidence Prélude développe une architecture qualitative, pérenne et intemporelle, conçue par Letellier Architectes. Le projet s'intègre avec élégance dans son environnement historique, en faisant écho aux immeubles haussmanniens des boulevards toulousains. Les façades associent pierre, enduits clairs et brique, tandis que les menuiseries en aluminium gris clair apportent une touche contemporaine. Une cour intérieure pavée, inspirée des hôtels particuliers, renforce le caractère intimiste et prestigieux de la résidence. Prélude propose une collection exclusive de 11 logements, du 2 au 4 pièces.
Les appartements offrent :
- de vastes ouvertures favorisant une lumière naturelle omniprésente
- des terrasses ou jardins d'hiver
- de grandes chambres lumineuses, certaines dotées d'un dressing et d'une salle de bain privative
La résidence est équipée :
- d'un ascenseur
- de parkings privatifs couverts
Située rue Antoine Idrac (31000 Toulouse), la résidence neuve Prélude bénéficie d'un emplacement rare au sein du quartier Place Dupuy / Halle aux Grains, l'un des secteurs les plus chics et prisés de la Ville Rose.
À quelques pas du Canal du Midi, du Jardin du Grand Rond et du Jardin Royal, l'adresse conjugue patrimoine architectural, dynamisme urbain et qualité de vie. Le quartier séduit par ses façades du XIXe siècle, ses immeubles néoclassiques, ses commerces de proximité et ses lieux emblématiques toulousains.
À moins de 10 minutes à pied :
- Rue Croix-Baragnon (shopping)
- Place Saint-Georges (restaurants)
- Marchés des Carmes et Victor Hugo
- Théâtre du Capitole
- Berges du Canal du Midi
- Quais de la Garonne
La résidence profite d'une excellente desserte en transports :
- Métro B et future ligne C (2028) - station François Verdier à 140 m
- 6 lignes de bus (L1, L8, L9, 14, 29, 44) dans un rayon de 300 m
- Station Vél'Ô à 110 m
- Tramway T1 à 1,5 km
Contactez-nous dès maintenant pour découvrir les disponibilités de la résidence Prélude à Toulouse !
Autres logements - du programme "PRELUDE"
| Disponibilité | Prix | No | Genre | Pièces | Surface | Étage | Disponibilité | Prix | ||
|---|---|---|---|---|---|---|---|---|---|---|
| Voir | Disponible | 515 000€ | 05 | Appt. | - | 60.8m2 | 2ème | Disponible | 515 000€ | Voir |
| Voir | Disponible | 850 000€ | 06 | Appt. | - | 122.4m2 | 2ème | Disponible | 850 000€ | Voir |
| Voir | Disponible | 910 000€ | 09 | Appt. | - | 122.4m2 | 4ème | Disponible | 910 000€ | Voir |
| Voir | Disponible | 560 000€ | 08 | Appt. | - | 60.8m2 | 3ème | Disponible | 560 000€ | Voir |