199 000€
Appt. au 2ème
-
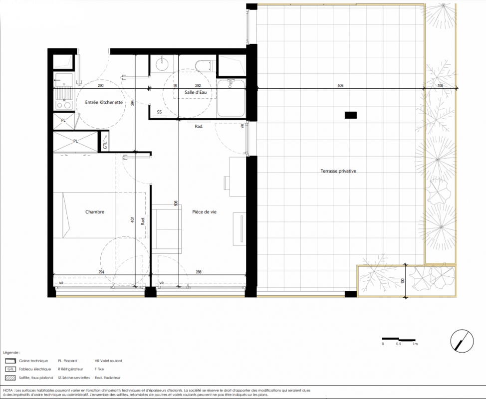
39.48 m²
-
Toulouse (31000)
2ème trimestre 2027
01 81 80 39 10
Présentation du programme "AERO CAMPUS"
AERO CAMPUS 2 - Résidence étudiante à Toulouse Rangueil.
Située au coeur du quartier Rangueil, à proximité immédiate du pôle universitaire Paul Sabatier et de grandes écoles reconnues comme l'ENAC, la résidence bénéficie d'un emplacement stratégique dans un environnement étudiant dynamique.
La résidence propose 118 appartements meublés de type T1, conçus pour répondre aux besoins des étudiants et jeunes actifs.
Pensée comme un véritable lieu de vie, AERO CAMPUS 2 s'organise autour d'espaces communs conviviaux et fonctionnels : patio végétalisé, salle de sport, espace de coworking et salle petit-déjeuner.
Son architecture contemporaine s'intègre dans un environnement paysager agréable, favorisant bien-être et échanges entre résidents.
Les appartements, entièrement meublés et équipés, offrent un cadre de vie pratique et confortable :
•Kitchenette fonctionnelle
•Salle d'eau aménagée
•Mobilier sur mesure (canapé-lit, bureau...)
•Certains logements avec espace extérieur
Les + du programme :
•Résidence étudiante avec services (conciergerie, laverie, wifi...)
•Gestion locative professionnelle
•Espaces communs qualitatifs (sport, coworking...)
•Accès sécurisé
•Local vélos
•Environnement paysager soigné
Au quotidien, profitez d'un emplacement recherché :
•À proximité immédiate des universités et écoles (ENAC, CNES, INSA...)
•Plus de 50 000 étudiants dans le secteur
•Métro ligne B permettant de rejoindre le centre-ville rapidement
•Accès facile aux pistes cyclables et aux berges du canal du Midi
Un investissement immobilier au coeur d'un bassin étudiant majeur, avec une résidence pensée pour répondre aux nouveaux usages et aux attentes locatives.
Contactez-nous dès maintenant au 05 64 09 25 25 pour recevoir la documentation complète et étudier votre projet d'investissement.
Autres logements - du programme "AERO CAMPUS"
| Disponibilité | Prix | No | Genre | Pièces | Surface | Étage | Disponibilité | Prix | ||
|---|---|---|---|---|---|---|---|---|---|---|
| Voir | Optionné | 134 500€ | 6 | Appt. | - | 18.7m2 | 0-RDC | Optionné Mais pas encore vendu 😉 | 134 500€ | Voir |
| Voir | Disponible | 134 500€ | 7 | Appt. | - | 18.86m2 | 0-RDC | Disponible | 134 500€ | Voir |
| Voir | Disponible | 134 500€ | 9 | Appt. | - | 18.8m2 | 0-RDC | Disponible | 134 500€ | Voir |
| Voir | Disponible | 134 500€ | 14 | Appt. | - | 18.87m2 | 0-RDC | Disponible | 134 500€ | Voir |
| Voir | Disponible | 134 500€ | 16 | Appt. | - | 18.93m2 | 0-RDC | Disponible | 134 500€ | Voir |
| Voir | Disponible | 134 500€ | 2 | Appt. | - | 18.94m2 | 0-RDC | Disponible | 134 500€ | Voir |
| Voir | Disponible | 134 500€ | 3 | Appt. | - | 18.94m2 | 0-RDC | Disponible | 134 500€ | Voir |
| Voir | Disponible | 134 500€ | 4 | Appt. | - | 18.94m2 | 0-RDC | Disponible | 134 500€ | Voir |
| Voir | Disponible | 134 500€ | 5 | Appt. | - | 18.94m2 | 0-RDC | Disponible | 134 500€ | Voir |
| Voir | Disponible | 134 500€ | 15 | Appt. | - | 18.94m2 | 0-RDC | Disponible | 134 500€ | Voir |
| Voir | Disponible | 165 000€ | 1 | Appt. | - | 35.52m2 | 0-RDC | Disponible | 165 000€ | Voir |