Ce lot n’est plus disponible chez VIANOVA ou est vendu.
Vous pouvez revenir dans 24h pour vérifier le stock à jour ou contacter un conseiller Vianova pour vérifier le stock en direct.
Vous pouvez également continuer votre recherche sur notre site « ici ».
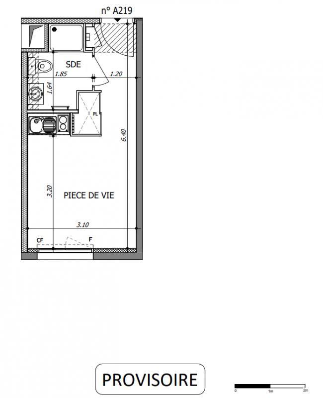
106 600€
Appt. au 2ème
Studio
18.78 m²
Sud-Est
Alès (30100)
2ème trimestre 2027
01 81 80 39 10
Présentation du programme "Programme neuf Alès (30100)"
Investissez dans notre nouvelle résidence étudiante Urbaneo Les Mines – Alès Alès et bénéficiez des avantages du LMNP avec une rentabilité de 6% par an ! Idéalement située à quelques minutes à pied de l'École des Mines d'Alès, Urbaneo – Les Mines offre un cadre de vie adapté aux besoins des étudiants et des jeunes actifs, alliant confort, sécurité et convivialité. Notre nouvelle résidence est à proximité immédiate d’une supérette et d’un primeur accessibles directement à pied, ainsi que de la gare d'Alès, située à seulement 5 min* à vélo, permettant des déplacements rapides et pratiques. Les transports en commun desservent efficacement les différents quartiers de la ville avec notamment de nombreux arrêts de bus dans les alentours, garantissant un accès facile aux établissements scolaires et universitaires ainsi qu'aux espaces de loisirs.La résidence propose des appartements fonctionnels allant du studio au 2 pièces, dont certains disposent d'un balcon. Conçus pour optimiser l'espace de vie, nos logements offrent un cadre confortable et pratique, parfaitement adapté aux exigences des étudiants. Pour assurer bien-être et sérénité, la résidence est entièrement fermée et sécurisée.Urbaneo met à disposition de ses résidents un gardien assurant une présence rassurante, une laverie en libre-service, un local à vélos sécurisé, une salle de coworking propice au travail, un espace arboré pour se détendre, ainsi qu'une terrasse commune pour partager des moments conviviaux.Inscrivez-vous sans plus attendre pour être les premiers informés de notre lancement commercial !
Autres logements Studio du programme "Programme neuf Alès (30100)"
| Disponibilité | Prix | No | Genre | Pièces | Surface | Étage | Disponibilité | Prix | ||
|---|---|---|---|---|---|---|---|---|---|---|
| Voir | Disponible | 104 000€ | A012 | Appt. | Studio | 18.78m2 | 0-RDC | Disponible | 104 000€ | Voir |
| Voir | Disponible | 124 300€ | A125 | Appt. | Studio | 24.02m2 | 1er | Disponible | 124 300€ | Voir |
| Voir | Disponible | 103 900€ | B010 | Appt. | Studio | 20.93m2 | 0-RDC | Disponible | 103 900€ | Voir |
| Voir | Disponible | 102 500€ | B015 | Appt. | Studio | 18.78m2 | 0-RDC | Disponible | 102 500€ | Voir |
| Voir | Disponible | 102 500€ | B019 | Appt. | Studio | 18.78m2 | 0-RDC | Disponible | 102 500€ | Voir |
| Voir | Disponible | 101 000€ | B022 | Appt. | Studio | 18.72m2 | 0-RDC | Disponible | 101 000€ | Voir |
| Voir | Disponible | 116 500€ | BR01 | Appt. | Studio | 26.79m2 | 0-RDC | Disponible | 116 500€ | Voir |
| Voir | Disponible | 109 200€ | BR06 | Appt. | Studio | 18.78m2 | 0-RDC | Disponible | 109 200€ | Voir |
| Voir | Disponible | 106 600€ | BR25 | Appt. | Studio | 18.78m2 | 0-RDC | Disponible | 106 600€ | Voir |
| Voir | Disponible | 118 400€ | BR26 | Appt. | Studio | 27.93m2 | 0-RDC | Disponible | 118 400€ | Voir |
| Voir | Disponible | 109 200€ | A221 | Appt. | Studio | 18.78m2 | 2ème | Disponible | 109 200€ | Voir |
| Voir | Disponible | 99 600€ | A118 | Appt. | Studio | 18.78m2 | 1er | Disponible | 99 600€ | Voir |
| Voir | Disponible | 102 900€ | BR05 | Appt. | Studio | 18.78m2 | 0-RDC | Disponible | 102 900€ | Voir |
| Voir | Disponible | 107 200€ | A011B | Appt. | Studio | 17.95m2 | 0-RDC | Disponible | 107 200€ | Voir |
| Voir | Disponible | 107 200€ | A111A | Appt. | Studio | 17.95m2 | 1er | Disponible | 107 200€ | Voir |
| Voir | Disponible | 118 000€ | A111B | Appt. | Studio | 20.53m2 | 1er | Disponible | 118 000€ | Voir |
| Voir | Disponible | 124 400€ | A112A | Appt. | Studio | 20.53m2 | 1er | Disponible | 124 400€ | Voir |
| Voir | Disponible | 108 200€ | A112B | Appt. | Studio | 17.95m2 | 1er | Disponible | 108 200€ | Voir |
| Voir | Disponible | 108 200€ | A124A | Appt. | Studio | 18.78m2 | 1er | Disponible | 108 200€ | Voir |
| Voir | Disponible | 124 400€ | A124B | Appt. | Studio | 25.17m2 | 1er | Disponible | 124 400€ | Voir |
| Voir | Disponible | 109 400€ | A211A | Appt. | Studio | 17.95m2 | 2ème | Disponible | 109 400€ | Voir |
| Voir | Disponible | 124 400€ | A211B | Appt. | Studio | 20.53m2 | 2ème | Disponible | 124 400€ | Voir |
| Voir | Disponible | 124 400€ | A212A | Appt. | Studio | 20.53m2 | 2ème | Disponible | 124 400€ | Voir |
| Voir | Disponible | 109 400€ | A212B | Appt. | Studio | 17.95m2 | 2ème | Disponible | 109 400€ | Voir |
| Voir | Disponible | 109 400€ | A224A | Appt. | Studio | 18.78m2 | 2ème | Disponible | 109 400€ | Voir |
| Voir | Disponible | 129 800€ | A224B | Appt. | Studio | 25.17m2 | 2ème | Disponible | 129 800€ | Voir |