Prix
191 900€
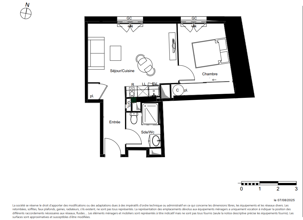
Type
Appt. au 1er
Pièces
T2
Surface
37.86 m²
Exposition
Nord
Ville
Mont-de-Marsan (40000)
Livraison
3ème trimestre 2027
Informations
01 81 80 39 10

Présentation du programme "Cour Richelieu"

Investissez à Mont-de-Marsan, ville historique au patrimoine uniqueVille préfecture des Landes, Mont-de-Marsan s’impose comme un pôle administratif, économique et culturel structurant du territoire.Environ 32 000 habitants, avec une démographie stable et un bassin de population élargi à l’échelle départementale.Cadre de vie recherché alliant nature, patrimoine et dynamisme urbain, au cœur de la Nouvelle-Aquitaine.Proximité immédiate de l’océan Atlantique, de Bordeaux, Toulouse et de l’Espagne, renforçant l’attractivité résidentielle.Mont-de-Marsan, l'équilibre parfait entre qualité de vie et potentiel locatifBassin d’emploi solide : préfecture, hôpitaux, tribunaux et Base Aérienne 118 (environ 2 000 emplois directs).Ville à taille humaine avec une forte demande locative en centre-ville, notamment pour les petites et moyennes surfaces.Présence d’établissements d’enseignement (Campus Landes, lycées, collèges), générant une demande locative pérenne.Dynamisme culturel reconnu : musées, événements majeurs (Fêtes de la Madeleine), équipements culturels et sportifs. Commodités et transports Une adresse centrale, en plein cœur du centre historique.Centre-ville commerçant accessible à pied : commerces de proximité, restaurants, marché Saint-Roch.Transports en commun : Arrêts de bus lignes A et B à moins de 400 m et la gare SNCF est à environ 1 km.Tous les services et équipements essentiels sont accessibles à pied : établissements scolaires, crèches, centre hospitalier, médiathèque, infrastructures culturelles. Sans oublier le Parc Jean Rameau, véritable poumon vert de la ville, situé à seulement 500 mètres. Focus Prestations/RésidenceRéhabilitation complète d’un ancien hôtel particulier du XIX¿ siècle, emblématique de Mont-de-Marsan.Résidence de 44 logements du T1 au T3, répartis sur deux bâtiments.Architecture néoclassique conservée : façades symétriques, ferronneries, volumes élégants.Espaces extérieurs valorisés : balcons, terrasses privatives, cour intérieure paysagée.Prestations intérieures qualitatives : parquet bois massif conservé ou revêtements contemporains / cuisine équipée et meublée selon typologies / salles de bains équipées, finitions soignées.Amélioration énergétique significative : isolation des murs et de la toiture / menuiseries double vitrage à isolation thermique et acoustique renforcée.Stationnements en parking en sous-sol. Le + du programme : Une réhabilitation patrimoniale durable, alliant cachet de l’ancien et confort moderne.

Autres logements T2 du programme "Cour Richelieu"

Disponibilité Prix Genre Pièces Surface Étage
Voir
Disponible
194 900€ Appt. T2 38.65m2 2ème
DO NOT CLICK