Prix
109 500€
109 500€
Type
Appt. au 0-RDC
Appt. au 0-RDC
Pièces
Studio
Studio
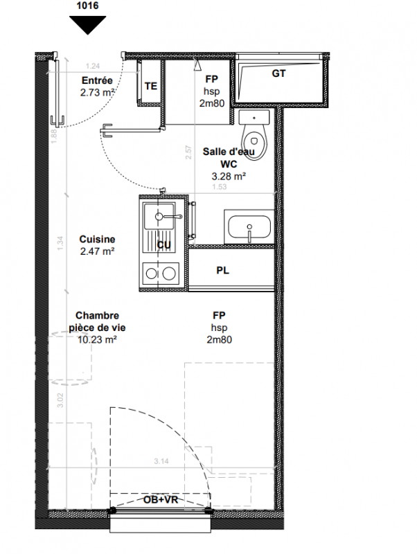
Surface
18 m²
18 m²
Exposition
Sud-Ouest
Sud-Ouest
Ville
Limoges (87000)
Limoges (87000)
Livraison
3ème trimestre 2026
3ème trimestre 2026
Informations
01 81 80 39 10
01 81 80 39 10
Présentation du programme "KAOL'IN"
Découvrez une résidence pour étudiants idéalement située à Limoges (87). Le GROUPE NEXITY, professionnel del'immobilier résidentiel et de la valorisation d'actifs, propose de donner un nouveau souffle à une résidence pour étudiants à proximité immédiate du centre-ville de Limoges. Rénovée par nos équipes expertes et gérée par un acteur de référence, cette résidence de 211 lots offrira des services étudiés pour le bien-être des étudiants. Inédit, l'investissement dans cette résidence vous permettra de bénéficier d'un investissement sécurisé, rentable et de profiter d'avantages fiscaux exceptionnels en Déficit Foncier.
Autres logements Studio du programme "KAOL'IN"
| Disponibilité | Prix | No | Genre | Pièces | Surface | Étage | Disponibilité | Prix | ||
|---|---|---|---|---|---|---|---|---|---|---|
| Voir | Disponible | 165 499€ | 1123 | Appt. | Studio | 34m2 | 1er | Disponible | 165 499€ | Voir |
| Voir | Disponible | 103 099€ | 1036 | Appt. | Studio | 18m2 | 0-RDC | Disponible | 103 099€ | Voir |
| Voir | Disponible | 104 200€ | 1034 | Appt. | Studio | 18m2 | 0-RDC | Disponible | 104 200€ | Voir |
| Voir | Disponible | 112 200€ | 1022 | Appt. | Studio | 19m2 | 0-RDC | Disponible | 112 200€ | Voir |
| Voir | Optionné | 120 600€ | 1442 | Appt. | Studio | 18m2 | 4ème | Optionné Mais pas encore vendu 😉 | 120 600€ | Voir |