Prix
246 000€
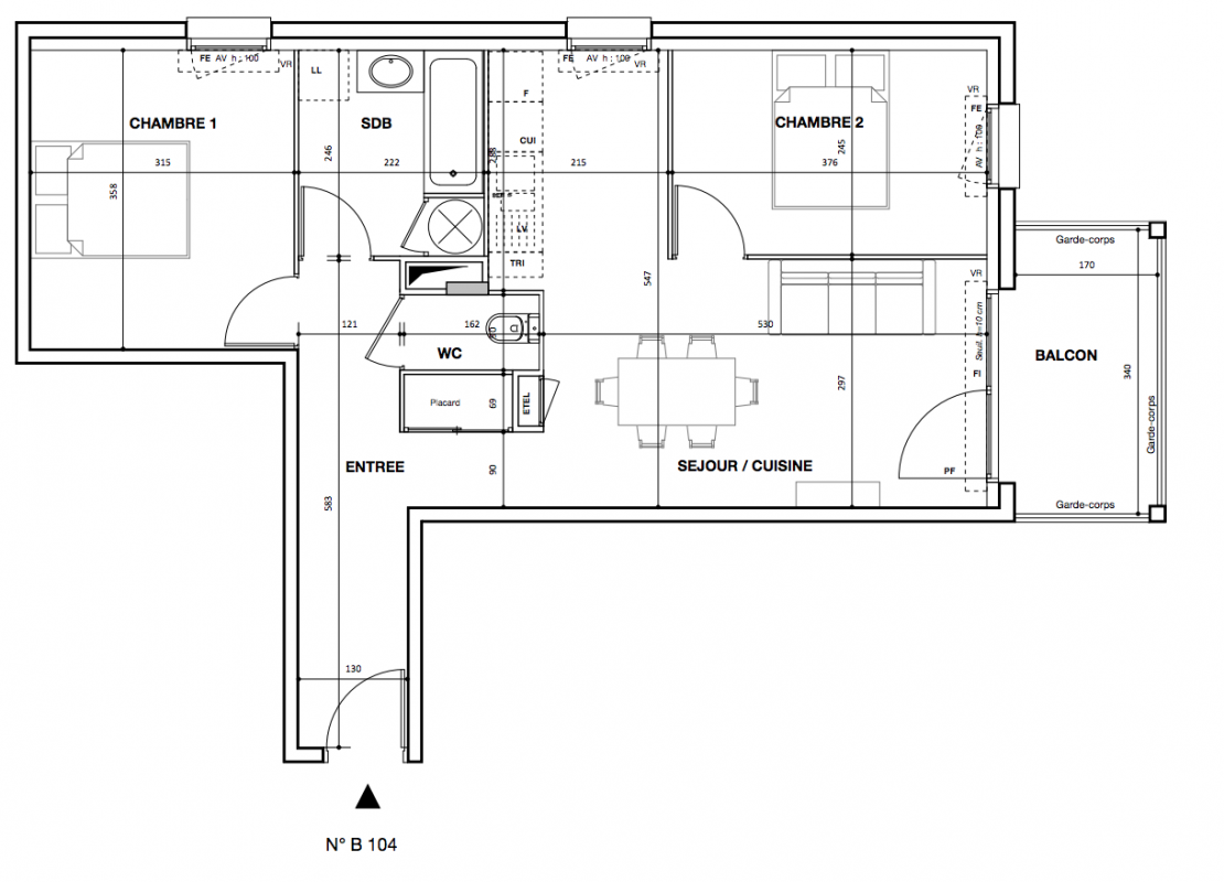
Type
Appt. au 1er
Pièces
T3
Surface
58.6 m²
Exposition
-
Ville
Marcheprime (33380)
Livraison
3ème trimestre 2027
Informations
01 81 80 39 10

Présentation du programme "LA HUSTA"

A Marcheprime, entre Bordeaux et Arcachon, laissez-vous séduire par cette résidence neuve à l’architecture landaise proposant des appartements du studio au 3 pièces, tous prolongés par un balcon ombragé ou un jardin. Couleurs locales et toitures en tuiles, la résidence s’intègre parfaitement dans son décor très naturel, à seulement 10 min* à pied de la gare SNCF. Une adresse de charme, idéale pour habiter au cœur du Parc naturel des Landes.

En co-promotion avec Crédit Agrcole Immobilier.

Autres logements T3 du programme "LA HUSTA"

Disponibilité Prix Genre Pièces Surface Étage
Voir
Disponible
222 000€ Appt. T3 52.61m2 1er
DO NOT CLICK