Prix
240 000€
Type
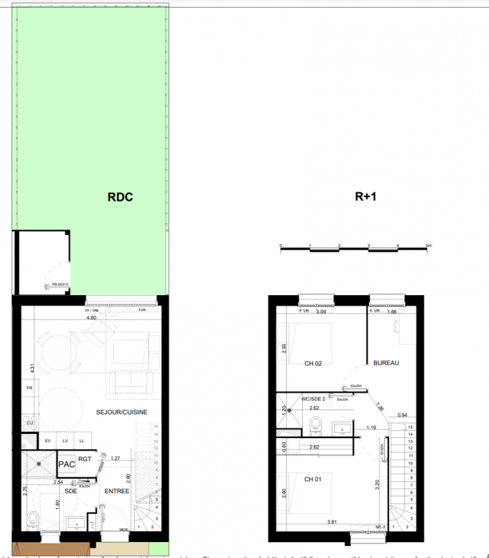
Maison au 0-RDC
Pièces
T3
Surface
66 m²
Exposition
Nord-Est
Ville
Le Barp (33114)
Livraison
2ème trimestre 2028
Informations
01 81 80 39 10

Présentation du programme "VISION'EYRE"

Devenez propriétaire au Barp, une commune dynamique et verdoyante située entre Bordeaux et le Bassin d'Arcachon, au coeur de la Gironde. Dans un lotissement calme et résidentiel, découvrez une nouvelle résidence proposant des appartements neufs de 2 et 3 pièces, ainsi que des maisons neuves de 3 ou 4 pièces, idéales pour les familles, les jeunes actifs ou les investisseurs. Chaque logement a été pensé pour offrir un confort de vie optimal, avec des espaces lumineux, des prestations de qualité, et un extérieur privatif (balcon, terrasse ou jardin). Le tout dans un environnement naturel, à proximité des commerces, écoles, services de santé et axes routiers (A63 à quelques minutes). Pourquoi acheter un bien immobilier neuf au Barp ? Un emplacement stratégique, à 30 minutes de Bordeaux et d'Arcachon, un cadre de vie recherché et des avantages fiscaux (éligible PTZ, frais de notaire réduits, normes énergétiques optimales) Pour toutes informations complémentaires, prenez contact avec nous !

Autres logements T3 du programme "VISION'EYRE"

Disponibilité Prix Genre Pièces Surface Étage
Voir
Disponible
240 000€ Maison T3 66m2 0-RDC
Voir
Disponible
244 000€ Maison T3 66m2 0-RDC
Voir
Disponible
244 000€ Maison T3 66m2 0-RDC
DO NOT CLICK