Prix
81 500€
Type
Appt. au 2ème
Pièces
Studio
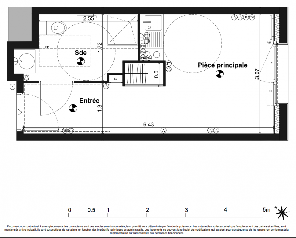
Surface
19.26 m²
Exposition
Sud
Ville
Bordeaux (33000)
Livraison
1er trimestre 2024
Informations
01 81 80 39 10

Présentation du programme "Résidence Étudiante Studéa Bordeaux Chartrons"

Descriptif de la résidenceLe quartier des Chartrons à Bordeaux est un secteur historique et dynamique, idéal pour les étudiants et les jeunes actifs. Avec ses rues pavées et ses anciens chais, le quartier conserve un charme unique tout en abritant de nombreuses galeries d'art, boutiques de créateurs, bars, et restaurants. La vie sociale y est animée avec de nombreux lieux de sortie et le célèbre marché des Chartrons qui propose des produits frais et locaux chaque dimanche. Les commodités essentielles comme les supermarchés, pharmacies, banques et centres de santé sont facilement accessibles. Les Chartrons sont bien desservis par les transports en commun, avec les lignes de tramway B et C reliant rapidement aux universités et écoles de Bordeaux. Les quais de la Garonne et le Jardin Public de Bordeaux offrent des espaces verts parfaits pour les activités de plein air et la détente. En résumé, le quartier des Chartrons combine tradition et modernité, offrant un cadre de vie agréable et dynamique, idéal pour les étudiants et les jeunes professionnels.Descriptif gestionnaireFiliale du Groupe Nexity, Nexity Studéa est présente sur le marché des résidences privées pour étudiants depuis plus de 20 ans. Elle fait partie des leaders de son secteur et fait preuve d’un savoir-faire acquis et d’un engagement fort vis-à-vis de ses clients. Pour répondre précisément aux besoins et attentes des propriétaires comme des locataires, Nexity Studéa se positionne comme le spécialiste de l’exploitation technique et commerciale de résidences étudiantes privées, leaders sur ce secteur en termes de qualité d’implantations, de gestion et de qualité de services, et partenaire de confiance qui entretient des liens privilégiés avec les écoles, commerces et entreprises à proximité de ses implantations.Arguments de venteLa résidence étudiante Bordeaux Chartrons propose des logements modernes et confortables, entièrement meublés avec kitchenette, salle de bain privative, et connexion internet haut débit. Les résidents bénéficient d’espaces communs tels qu’une salle de sport, une salle de détente et une salle d’étude, ainsi qu’une laverie accessible 24h/24. La sécurité est assurée par un accès contrôlé, des caméras de surveillance et un gardien sur place. Idéalement située dans le quartier historique des Chartrons, la résidence est proche des principales universités et écoles de Bordeaux, avec un accès facile aux transports en commun. Les résidents profitent d’une vie de quartier...

Autres logements Studio du programme "Résidence Étudiante Studéa Bordeaux Chartrons"

Disponibilité Prix Genre Pièces Surface Étage
Voir
Disponible
91 000€ Appt. Studio 19.13m2 1er