Ce lot n’est plus disponible chez VIANOVA ou est vendu.

Vous pouvez revenir dans 24h pour vérifier le stock à jour ou contacter un conseiller Vianova pour vérifier le stock en direct.
Vous pouvez également continuer votre recherche sur notre site « ici ».

Prix
84 500€
Type
Appt. au 2ème
Pièces
-
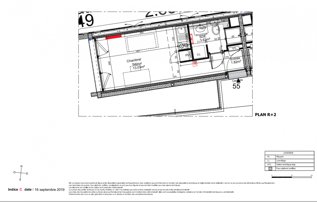
Surface
18.69 m²
Exposition
Ouest
Ville
Bordeaux (33000)
Livraison
1er trimestre 2020
Informations
01 81 80 39 10

Présentation du programme "Chais 1892 - MS"




Sur le site des anciens chais de la maison de négoce Mähler-Besse, une adresse emblématique du quartier des Chartrons

"Chais 1892" est une réhabilitation de caractère. À travers la mise à nu des structures d'époque, elle va permettre d'offrir un confort contemporain tout en conservant l'esprit d'origine des anciens chais de la maison Mähler-Besse.

Symbole de l'histoire viticole bordelaise, le quartier des Chartrons a accueilli durant des décennies les grands négociants de vin locaux. Il en a conservé une architecture typique d'anciens chais et de belles demeures, qui, depuis les années 2000, est l'objet d'un ambitieux programme de mise en valeur de ce patrimoine rare.

Autres logements - du programme "Chais 1892 - MS"

Pas de logements disponibles
DO NOT CLICK