Prix
480 000€
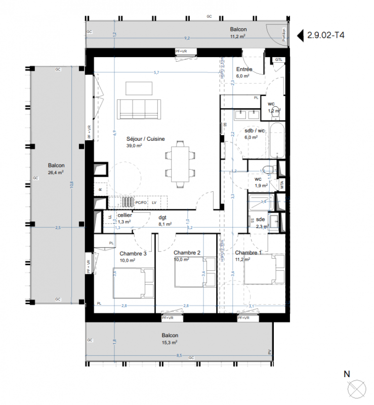
Type
Appt. au 9ème
Pièces
T4
Surface
97 m²
Exposition
Ouest
Ville
Bordeaux (33000)
Livraison
3ème trimestre 2028
Informations
01 81 80 39 10

Présentation du programme "BORDEAUX BELVEDERE"

Au coeur du quartier Deschamps Belvédère, à quelques pas du Pont de Pierre, Nexity en copromotion avec Altarea Cogedim présente BordoTempo sa nouvelle résidence. Inspirée de l'architecture bordelaise, elle accueille des appartements lumineux, du 2 au 5 pièces, tous prolongés par une terrasse, un balcon ou une loggia. La résidence s'inscrit dans un environnement à la fois dynamique et apaisé, et offre un cadre de vie équilibré où l'effervescence des commerces, restaurants, espaces culturels côtoie la quiétude des berges de la Garonne. En co-promotion avec Altarea Cogedim. Pour toutes informations complémentaires, prenez contact avec nous !

Autres logements T4 du programme "BORDEAUX BELVEDERE"

Disponibilité Prix Genre Pièces Surface Étage
Voir
Disponible
391 000€ Appt. T4 84m2 7ème
Voir
Disponible
427 999€ Appt. T4 90m2 9ème