169 076€
Appt. au 1er
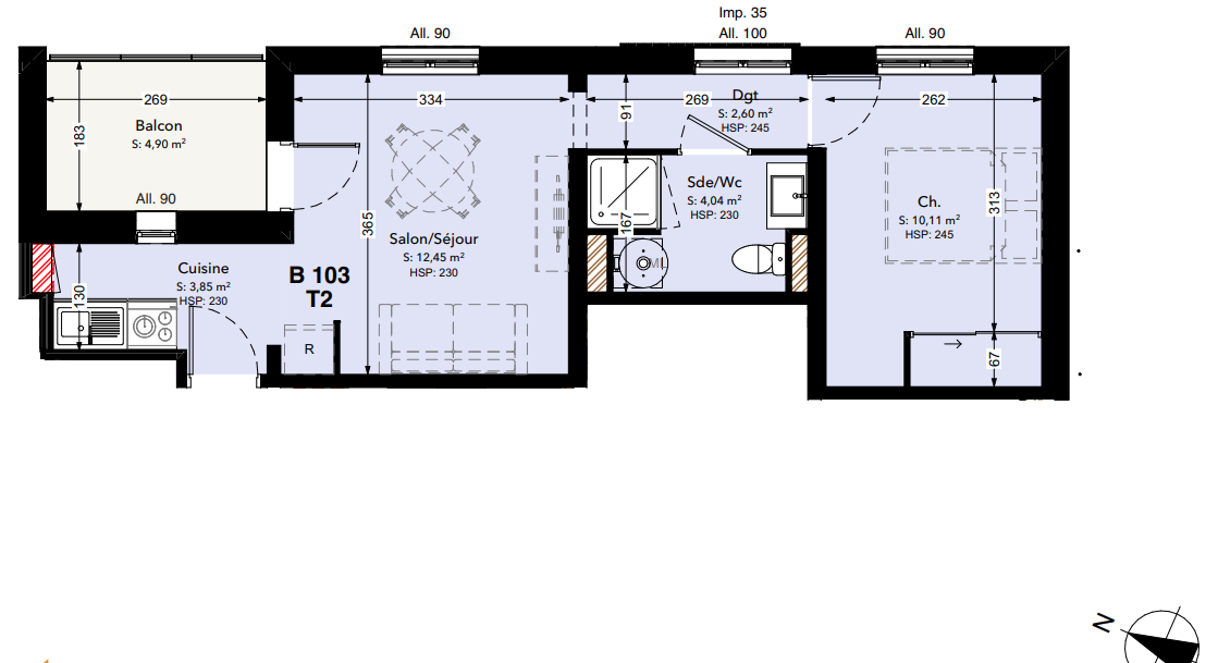
T2
33.1 m²
-
Niort (79000)
3ème trimestre 2027
01 81 80 39 10
Présentation du programme "Nexum"
Situé en plein cœur de Niort, Nexum se distingue par la transformation de trois bâtiments emblématiques en résidence moderne de 38 logements aux espaces optimisés, du T1 au T3. Conçu pour répondre aux besoins du quotidien, ce projet s’intègre pleinement dans notre engagement pour une construction durable en réhabilitant un patrimoine existant tout en apportant des prestations contemporaines. Grâce à son éligibilité aux dispositifs Denormandie et Déficit Foncier, Nexum offre une opportunité rare d’investissement. Ces avantages fiscaux permettent de réduire significativement l’imposition des investisseurs tout en s’assurant d’un bien à fort potentiel locatif. Capitale des mutuelles d’assurance, Niort bénéficie d’une économie florissante et d’un marché immobilier dynamique. Avec des infrastructures en développement, un cadre de vie agréable et une demande locative en hausse, la ville attire de plus en plus d’actifs et d’étudiants. Investir dans Nexum, c’est profiter de cette expansion et valoriser son patrimoine immobilier dans une ville tournée vers l’avenir.Pourquoi investir à Niort ?Un marché locatif attractif : prix accessibles avec une rentabilité locative intéressante.Un dynamisme économique fort : Capitale des mutuelles d’assurance, Niort accueille de nombreux sièges sociaux et entreprises innovantes.Une demande locative en hausse : Grâce à l’implantation d’écoles supérieures, de nouvelles entreprises et à l’attrait du territoire.Des infrastructures en plein développement : Modernisation des transports, nouveaux équipements et réaménagements urbains.Une qualité de vie appréciée : Ville à taille humaine avec des espaces verts, une offre culturelle riche et une proximité avec la côté Atlantique. Ne manquez pas cette occasion unique de conjuguer rentabilité, engagement écologique et valorisation patrimoniale. Contactez-nous dès aujourd’hui pour en savoir plus sur Nexum et réservez votre futur bien immobilier !
Autres logements T2 du programme "Nexum"
| Disponibilité | Prix | No | Genre | Pièces | Surface | Étage | Disponibilité | Prix | ||
|---|---|---|---|---|---|---|---|---|---|---|
| Voir | Disponible | 221 012€ | 1 | Appt. | T2 | 44.2m2 | 0-RDC | Disponible | 221 012€ | Voir |
| Voir | Disponible | 175 577€ | 2 | Appt. | T2 | 36.1m2 | 0-RDC | Disponible | 175 577€ | Voir |
| Voir | Disponible | 175 583€ | 3 | Appt. | T2 | 36m2 | 0-RDC | Disponible | 175 583€ | Voir |
| Voir | Disponible | 220 349€ | 4 | Appt. | T2 | 44.2m2 | 0-RDC | Disponible | 220 349€ | Voir |
| Voir | Disponible | 166 658€ | 6 | Appt. | T2 | 33.1m2 | 1er | Disponible | 166 658€ | Voir |
| Voir | Disponible | 161 793€ | 10 | Appt. | T2 | 32.7m2 | 2ème | Disponible | 161 793€ | Voir |
| Voir | Disponible | 220 821€ | 11 | Appt. | T2 | 44.2m2 | 0-RDC | Disponible | 220 821€ | Voir |
| Voir | Disponible | 175 577€ | 12 | Appt. | T2 | 35.9m2 | 0-RDC | Disponible | 175 577€ | Voir |
| Voir | Disponible | 175 605€ | 13 | Appt. | T2 | 36.2m2 | 0-RDC | Disponible | 175 605€ | Voir |
| Voir | Disponible | 220 051€ | 14 | Appt. | T2 | 44.4m2 Le bon plan | 0-RDC | Disponible | 220 051€ | Voir |
| Voir | Disponible | 165 585€ | 23 | Appt. | T2 | 32.7m2 | 3ème | Disponible | 165 585€ | Voir |
| Voir | Disponible | 215 005€ | 25 | Appt. | T2 | 44.3m2 | 0-RDC | Disponible | 215 005€ | Voir |
| Voir | Disponible | 172 940€ | 27 | Appt. | T2 | 35.9m2 | 0-RDC | Disponible | 172 940€ | Voir |
| Voir | Disponible | 172 942€ | 26 | Appt. | T2 | 36.1m2 | 0-RDC | Disponible | 172 942€ | Voir |