375 000€
Appt. au 3ème
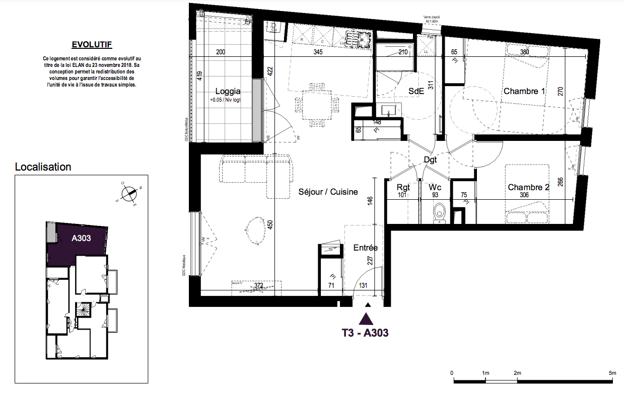
T3
74.02 m²
Sud
La Rochelle (17000)
1er trimestre 2025
01 81 80 39 10
Présentation du programme "CELESTE"
A 10 minutes en vélo du Vieux Port de La Rochelle, la résidence Céleste est située dans le quartier calme avec toutes les commodités et la gare à proximité. L’architecture de la résidence Céleste a été dessinée avec des volumes variés. La résidence propose 41 appartements du 2 au 5 pièces avec loggias et terrasses qui viendront animer la façade. L'arrière de la résidence offre un grand jardin arboré de plus de 250 m² et au rez-de-chaussée des espaces de bureaux. Notre nouvelle signature rochelaise CELESTE prend place sur un des axes principaux de la ville : la rue Emile Normandin. Situé à proximité immédiate, le marais de Tasdon est une richesse naturelle qui valorise plus de 150 espèces d’oiseaux et plus de 330 espèces végétales !
Autres logements T3 du programme "CELESTE"
| Disponibilité | Prix | No | Genre | Pièces | Surface | Étage | Disponibilité | Prix | ||
|---|---|---|---|---|---|---|---|---|---|---|
| Voir | Disponible | 335 000€ | B102 | Appt. | T3 | 65.82m2 Le bon plan | 0-RDC | Disponible | 335 000€ | Voir |
| Voir | Disponible | 323 000€ | B103 | Appt. | T3 | 64.01m2 | 0-RDC | Disponible | 323 000€ | Voir |
| Voir | Disponible | 333 000€ | B203 | Appt. | T3 | 63.96m2 | 2ème | Disponible | 333 000€ | Voir |