499 000€
Appt. au 0-RDC
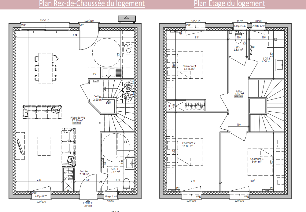
T4
92.7 m²
-
Angoulins (17690)
2ème trimestre 2027
01 81 80 39 10
Présentation du programme "Arpège"
Arpège, laissez-vous séduire par une nouvelle mélodie de vie à Angoulins-sur-Mer. Un Emplacement privilégié ! Plongez dans le charme unique d’Angoulins-sur-Mer, une commune prisée de la Charente-Maritime, située à seulement 9 km de La Rochelle.Nouveau programme immobilier, en co-promotion avec URBAN STORY, conçu pour répondre à tous vos besoins dans une petite ville combinant le charme d’un village traditionnel et les avantages de la proximité d’une grande ville dynamique. Idéalement situé à seulement 1 km de la plage, Arpège vous offre un cadre de vie exceptionnel.Un accès pratique, une fluidité de circulation, et une forte volonté de respecter l’environnement, Arpège maximise les espaces verts et les surfaces perméables. Le projet se structure autour d’un îlot central paysagé, comprenant deux collectifs de 6 logements chacun, offrant un cadre de vie harmonieux et agréable. Des maisons individuelles et premium, dotées de jardins aménagés à l’arrière, sont judicieusement réparties autour de l’îlot central. À l’est, un ensemble de 5 maisons s’intègre parfaitement à l’urbanisation existante, dont certaines offrant une vue mer exceptionnelle à l’étage.Un cadre de vie unique, Arpège incarne la mixité générationnelle et la diversité des habitats. Chaque espace est conçu pour favoriser la convivialité et le bien-être, faisant d’Arpège un endroit où il fait bon vivre.Transformez votre logement en un espace unique grâce à notre service de personnalisation sur mesure ! Choisissez parmi une vaste gamme de coloris pour vos faïences, carrelages, parquets et bien plus encore. Avec notre expertise et notre passion pour le détail, votre maison devient un véritable chez-vous, pensé pour vous et par vous.
Autres logements T4 du programme "Arpège"
| Disponibilité | Prix | No | Genre | Pièces | Surface | Étage | Disponibilité | Prix | ||
|---|---|---|---|---|---|---|---|---|---|---|
| Voir | Optionné | 399 000€ | 005 | Appt. | T4 | 82.67m2 | 0-RDC | Optionné Mais pas encore vendu 😉 | 399 000€ | Voir |
| Voir | Optionné | 470 000€ | 006 | Appt. | T4 | 93.04m2 | 0-RDC | Optionné Mais pas encore vendu 😉 | 470 000€ | Voir |
| Voir | Optionné | 455 000€ | 007 | Appt. | T4 | 93.04m2 | 0-RDC | Optionné Mais pas encore vendu 😉 | 455 000€ | Voir |
| Voir | Optionné | 399 000€ | 010 | Appt. | T4 | 82.67m2 | 0-RDC | Optionné Mais pas encore vendu 😉 | 399 000€ | Voir |
| Voir | Disponible | 520 000€ | 013 | Appt. | T4 | 93.04m2 | 0-RDC | Disponible | 520 000€ | Voir |
| Voir | Disponible | 540 000€ | 014 | Appt. | T4 | 93.04m2 | 0-RDC | Disponible | 540 000€ | Voir |
| Voir | Disponible | 399 000€ | 019 | Appt. | T4 | 82.67m2 | 0-RDC | Disponible | 399 000€ | Voir |
| Voir | Disponible | 385 000€ | 020 | Appt. | T4 | 82.67m2 | 0-RDC | Disponible | 385 000€ | Voir |

