Ce lot n’est plus disponible chez VIANOVA ou est vendu.

Vous pouvez revenir dans 24h pour vérifier le stock à jour ou contacter un conseiller Vianova pour vérifier le stock en direct.
Vous pouvez également continuer votre recherche sur notre site « ici ».

Prix
258 000€  (TVA 20%)
225 750€  (TVA 5%)
Type
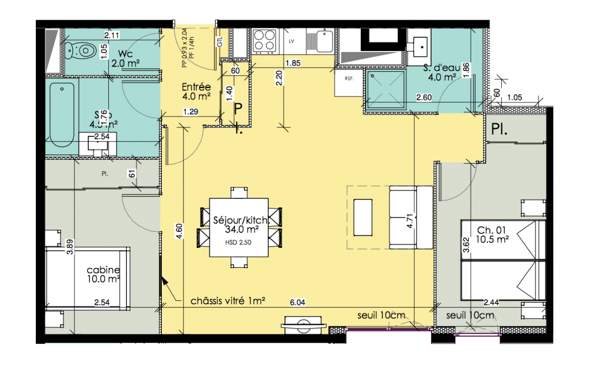
Appt. au 0-RDC
Pièces
T2
Surface
68.2 m²
Exposition
Sud
Ville
Le Tréport (76470)
Livraison
1er trimestre 2024
Informations
01 81 80 39 10

Présentation du programme "Le Phare"

Programme neuf Le Tréport (76470)

Autres logements T2 du programme "Le Phare"

Disponibilité Prix Genre Pièces Surface Étage
Voir
Disponible
255 600€ Appt. T2 68.1m2 0-RDC
Voir
Disponible
215 546€ Appt. T2 47.1m2 0-RDC