Ce lot n’est plus disponible chez VIANOVA ou est vendu.
Vous pouvez revenir dans 24h pour vérifier le stock à jour ou contacter un conseiller Vianova pour vérifier le stock en direct.
Vous pouvez également continuer votre recherche sur notre site « ici ».
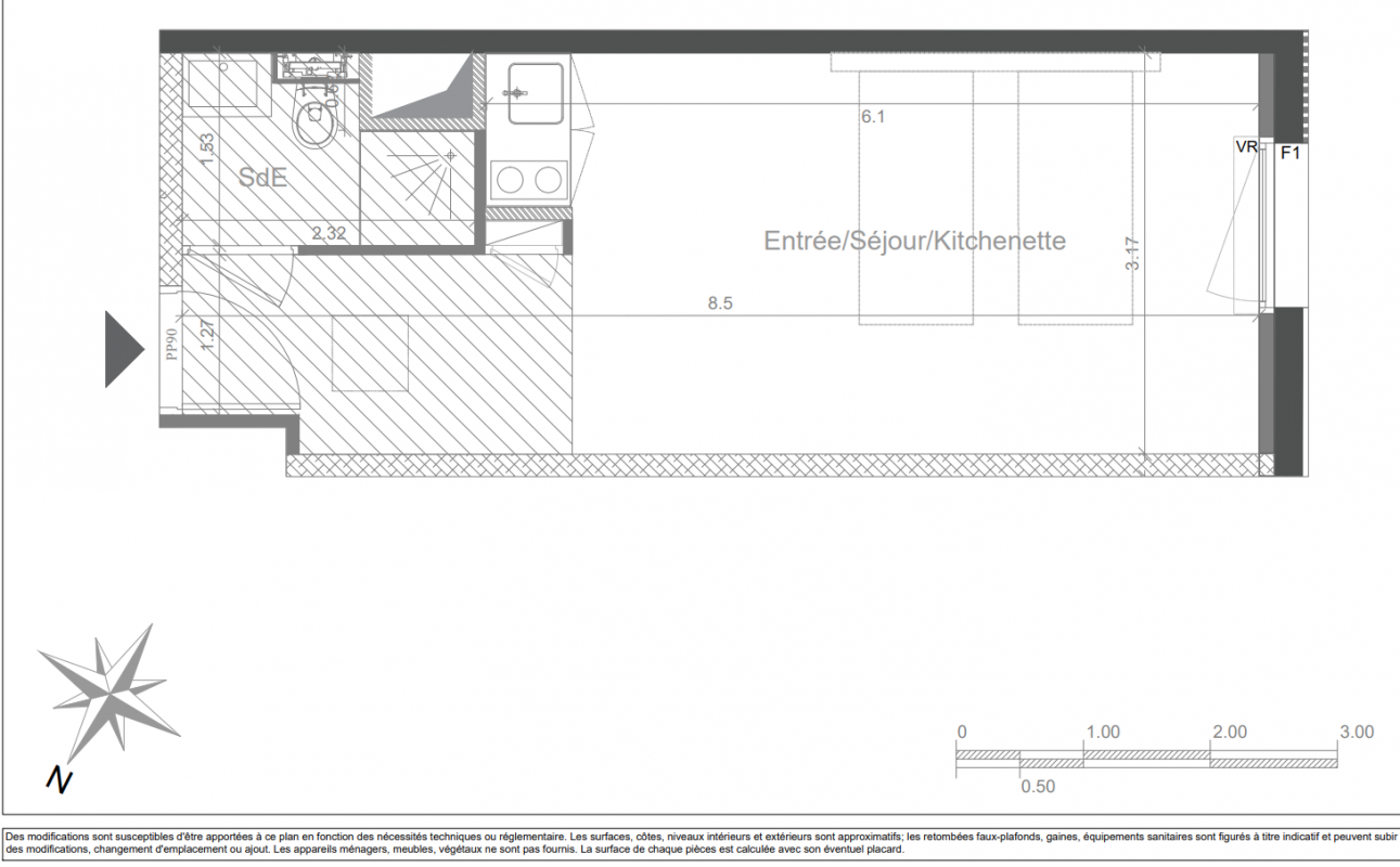
137 939€
Appt. au 0-RDC
Studio
25.39 m²
Sud-Ouest
Touques (14800)
4ème trimestre 2027
01 81 80 39 10
Présentation du programme "Symone By Adonis Touques"
La résidence "Symon(e) By Adonis" est située à la porte d'entrée de Deauville et Trouville et bénéficie :
- d'un accès rapide aux plages, aux casinos, hippodromes et golfs.
- de la proximité de la gare SNCF de Deauville (2 km), de l'autoroute A13/A29 (10 km) et de l'aéroport de Deauville-Normandie.
- d'un environnement à la fois urbain, touristique et naturel, à proximité du centre commercial Carrefour, de clubs de tennis, pistes cyclables et autres commodités
"Symon(e) By Adonis" n'est pas une résidence classique, mais une expérience immersive, fondée sur :
- l'art et le design : des espaces élégants, décorés avec un style contemporain et graphique.
- le jeu : playgrounds avec baby-foot, échecs, backgammon...
- lieux partagés et animation intergénérationnelle qui favorisent les interactions.
Cette résidence premium offre :
- lobby type coffee-shop, espace coworking, salle de sport connectée,
- piscine, salle de petit-déjeuner modulable, local vélos sécurisé.
- une connexion directe à la piste cyclable vers les plages.
- bowling et restaurants à proximité immédiate.
Elle s'adresse aussi bien aux touristes (couples, familles), aux voyageurs d'affaires mais aussi aux jeunes actifs, saisonniers et télétravailleurs.
Autres logements Studio du programme "Symone By Adonis Touques"
| Disponibilité | Prix | No | Genre | Pièces | Surface | Étage | Disponibilité | Prix | ||
|---|---|---|---|---|---|---|---|---|---|---|
| Voir | Disponible | 148 424€ | 102 | Appt. | Studio | 27.32m2 Le bon plan | 0-RDC | Disponible | 148 424€ | Voir |
| Voir | Disponible | 139 405€ | 103 | Appt. | Studio | 25.66m2 | 0-RDC | Disponible | 139 405€ | Voir |
| Voir | Disponible | 137 884€ | 104 | Appt. | Studio | 25.38m2 | 0-RDC | Disponible | 137 884€ | Voir |
| Voir | Disponible | 118 218€ | 109 | Appt. | Studio | 21.76m2 | 0-RDC | Disponible | 118 218€ | Voir |
| Voir | Optionné | 100 561€ | 111 | Appt. | Studio | 18.51m2 | 0-RDC | Optionné Mais pas encore vendu 😉 | 100 561€ | Voir |
| Voir | Disponible | 139 568€ | 115 | Appt. | Studio | 25.69m2 | 0-RDC | Disponible | 139 568€ | Voir |
| Voir | Disponible | 139 568€ | 119 | Appt. | Studio | 25.69m2 | 0-RDC | Disponible | 139 568€ | Voir |
| Voir | Disponible | 137 939€ | 123 | Appt. | Studio | 25.39m2 | 0-RDC | Disponible | 137 939€ | Voir |
| Voir | Disponible | 139 405€ | 303 | Appt. | Studio | 25.66m2 | 0-RDC | Disponible | 139 405€ | Voir |
| Voir | Disponible | 148 750€ | 402 | Appt. | Studio | 27.38m2 | 0-RDC | Disponible | 148 750€ | Voir |
| Voir | Optionné | 116 479€ | 407 | Appt. | Studio | 21.44m2 | 0-RDC | Optionné Mais pas encore vendu 😉 | 116 479€ | Voir |
| Voir | Disponible | 140 057€ | 413 | Appt. | Studio | 25.78m2 | 0-RDC | Disponible | 140 057€ | Voir |
| Voir | Disponible | 139 568€ | 418 | Appt. | Studio | 25.69m2 | 0-RDC | Disponible | 139 568€ | Voir |
| Voir | Disponible | 139 568€ | 420 | Appt. | Studio | 25.69m2 | 0-RDC | Disponible | 139 568€ | Voir |