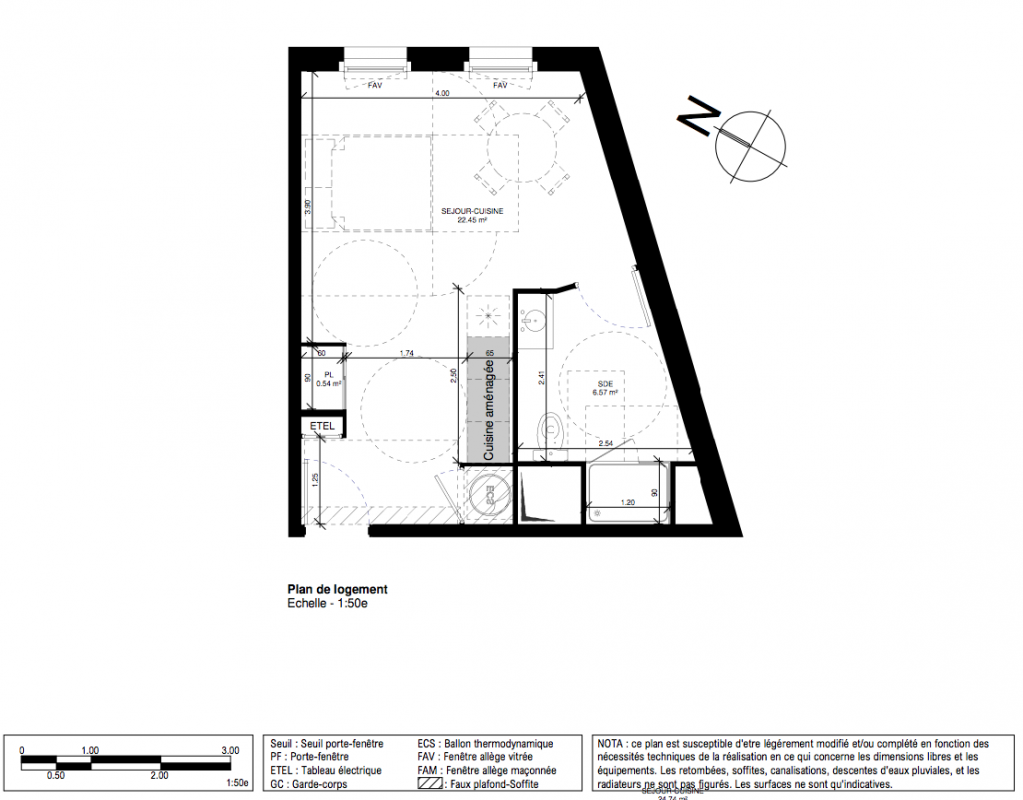
Prix
155 000€
Type
Appt. au 0-RDC
Pièces
Studio
Surface
30.14 m²
Exposition
-
Ville
Caen (14000)
Livraison
4ème trimestre 2028
Informations
01 81 80 39 10

Présentation du programme "Sélène"

Située entre les quartiers Saint‑Paul et Beaulieu, cette résidence intimiste s'implante dans un environnement calme et pavillonnaire, tout en bénéficiant d'une excellente connexion au centre‑ville grâce au futur arrêt de tram Pompidou.
Sélène propose 24 appartements, du studio au 4 pièces, conçus pour offrir confort et qualité de vie :

- pièces de vie lumineuses,
- balcons, terrasses ou jardins privatifs selon les logements,
- stationnement en sous‑sol,
- cadre résidentiel recherché.

Que vous souhaitiez habiter ou investir, Sélène réunit toutes les qualités d'un emplacement attractif et durable à Caen.

Autres logements Studio du programme "Sélène"

Disponibilité Prix Genre Pièces Surface Étage
Voir
Disponible
165 000€ Appt. Studio 30.14m2 0-RDC
DO NOT CLICK