372 600€
Appt. au 0-RDC
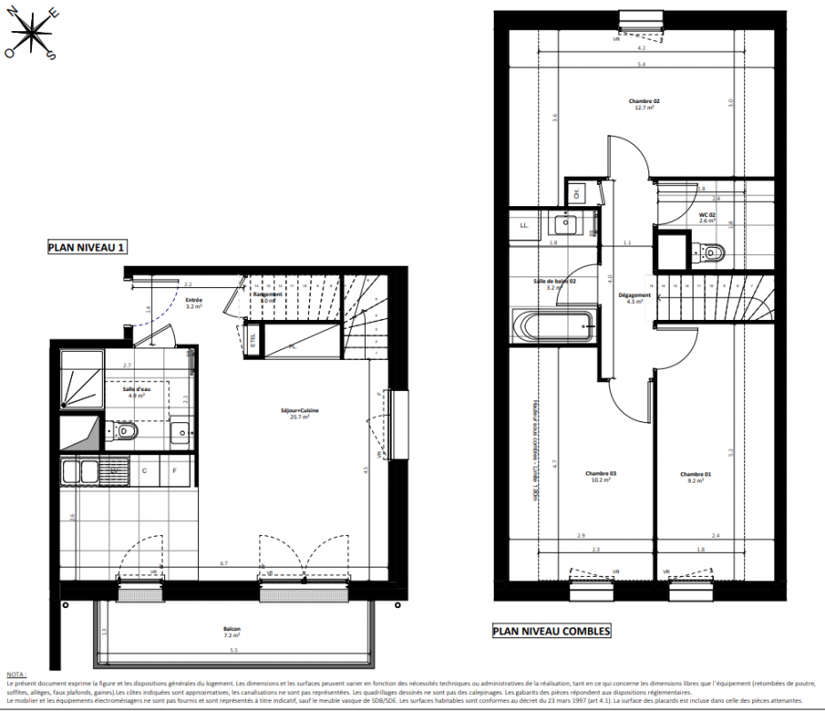
T4
77.2 m²
Sud
Cabourg (14390)
4ème trimestre 2028
01 81 80 39 10
Présentation du programme "LE DOMAINE D'EUGENIE- PP"
Vous souhaitez y habiter ? Vérifiez votre éligibilité au PTZ avec nos équipes ! Vous souhaitez le mettre en location? Vous avez le choix entre de la location nue éligible au statut du bailleur privé*ou meublée avec un pack gestionnaire. Contactez nos équipes pour une simulation.
Habitez ou investissez à Cabourg : le charme authentique de la côtefleurie
Station balnéaire réputée du Calvados, en Normandie, offrant un cadre de vie exceptionnel entre mer et nature.
Ville au charme unique avec son centre néo-normand, ses maisons à colombages et la célèbre promenade Marcel Proust face à la mer.
Qualité de vie remarquable : Cabourg séduit par son cadre exceptionnel entre mer et nature. Sa plage de sable fin, son centre de thalassothérapie et ses nombreuses infrastructures sportives et culturelles.
Cabourg : une ville attractive et porteuse
Attractivité économique : Située à proximité de Caen, la ville bénéficie d’un tissu économique dynamique porté par des filières variées (tourisme, nautisme, numérique) et par le pôle d’innovation MoHo.
Dynamisme culturel : festivals, hippodrome, salle de spectacle, Casino, Grand Hôtel.
Potentiel locatif renforcé par le label « Famille Plus », écoles, infrastructures sportives et de loisirs.
Commodités et transports
À quelques pas des essentiels : 950 m du centre-ville,des halles du marché etde la plage, 700 m des commerces, et 3 min à pied des écoles et du stade Fernand Sastre.
Accessibilité optimale : excellente desserte avec la gare de Dives-Cabourg à 4 minutes en voiture, offrant une liaison directe vers Paris Saint-Lazare. Les aéroports de Deauville et Caen se trouvent à 30 km et l’accès routier est facilité par l’autoroute A13 (sortie Dozulé). À 30 minutes de Caen et Deauville, à seulement 2h10 de Paris en voiture.
Focus prestations/résidence
Architecture soignée alternant style normand revisité et lignes contemporaines pour un ensemble harmonieux.
Logements variés et confortables : appartements allant du T1 au T4 et offrant des prestations de qualité (isolation phonique ISONO, volets roulants, double vitrage, parquet stratifié, cuisines é...