Prix
678 000€  (TVA 20%)
621 500€  (TVA 10%)
Type
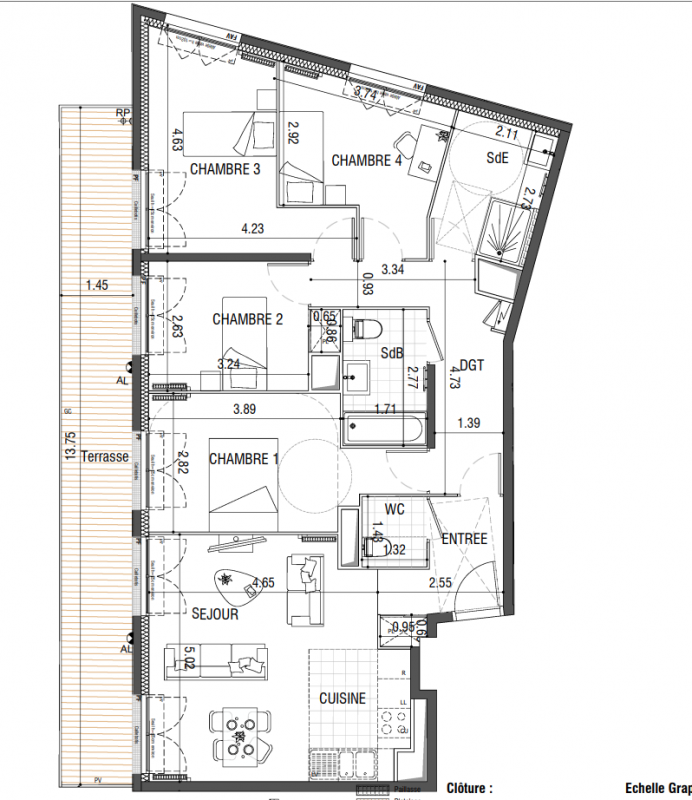
Appt. au 5ème
Pièces
T5
Surface
94 m²
Exposition
Sud-Ouest
Ville
Viroflay (78220)
Livraison
1er trimestre 2028
Informations
01 81 80 39 10

Présentation du programme "LE CLOS HERBRON"

Idéalement située au sein d'un quartier résidentiel recherché et parfaitement desservi, la résidence se trouve à proximité immédiate des commerces, des établissements scolaires et à seulement quelques minutes à pied de la gare « Viroflay Rive Gauche », offrant un accès rapide vers Paris (moins de 20 min) et Versailles (5 min). Cette résidence élégante et intimiste se compose d'un immeuble à l'architecture contemporaine et soignée ainsi que de deux maisons de ville avec accès indépendant. Du studio au 5 pièces, chaque logement offre de belles prestations et de généreux espaces extérieurs (balcons, loggias, terrasses ou jardins privatifs), pensés pour un confort de vie optimal. Une adresse rare, mêlant qualité architecturale, environnement privilégié et accessibilité directe aux bassins d'emploi de l'Ouest parisien. Contactez nous dès maintenant pour être les premiers informés ! Pour toutes informations complémentaires, prenez contact avec nous !

Autres logements T5 du programme "LE CLOS HERBRON"

Pas de logements disponibles
DO NOT CLICK