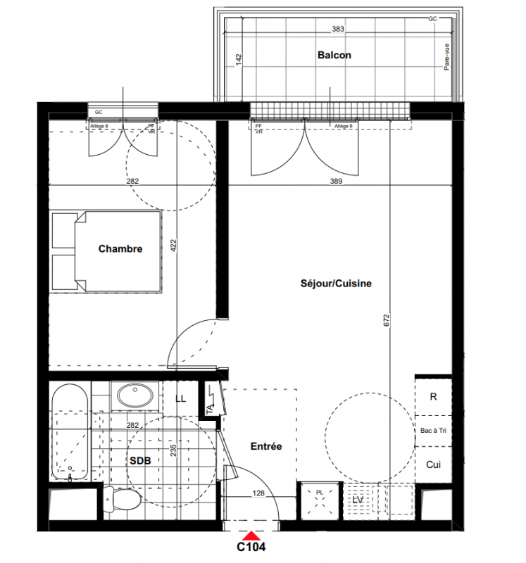
280 000€
Appt. au 1er
-
42.95 m²
Nord
Villennes-sur-Seine (78670)
4ème trimestre 2026
01 81 80 39 10
Présentation du programme "RÉSIDENCE DES COTEAUX"
Appelée autrefois « la Perle des Rivages » Villennes-sur-Seine est une ville privilégiée qui bénéficie à la fois d’un environnement naturel d’exception et d’une situation géographique stratégique. Paris, à 30 kilomètres, et les grands centres d’activités de l’ouest parisien sont rapidement accessibles par la route (A 13 et A 14) mais également grâce à un bon réseau de transports en commun (Ligne J, futur RER E, bus). Ainsi la ville séduit de plus en plus de citadins à la recherche d’un nouvel art de vivre. Il suffit en effet de se rendre sur la place de la mairie, sous la halle un jour de marché, de se promener le long des berges aménagées de la Seine ou de se retrouver dans une guinguette pour succomber à son charme. Au quotidien les Villennois profitent d’écoles, de nombreux commerces, d’une grande zone commerciale, d’un golf réputé et d’une offre culturelle et sportive innovante.