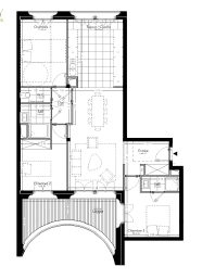
528 000€
Appt. au 0-RDC
T4
81.65 m²
-
Versailles (78000)
1er trimestre 2029
01 81 80 39 10
Présentation du programme "PATIO SATORY-L3"
FRAIS DE NOTAIRE OFFERTS JUSQU’AU 30 AVRIL 2026 ! À VERSAILLES SATORY : une opportunité patrimoniale portée par la dynamique du Grand Paris À seulement 8 minutes* à pied de la future gare de la ligne 18, GCC PROMOTION lance son premier programme résidentiel au cœur d’un nouvel écoquartier appelé à devenir l’un des pôles émergents les plus structurants de l’ouest francilien.Cette adresse conjugue emplacement stratégique, rareté de l’offre neuve à Versailles, qualité architecturale et fort potentiel de valorisation, soutenu par l’arrivée des nouvelles infrastructures de transport. Grâce à la future ligne 18, la résidence offrira une accessibilité directe vers des pôles majeurs :3 min** de Versailles-Chantiers (RER C et Transilien),14 min** de l’Université Paris-Saclay,30 min** de l’aéroport d’Orly. Au cœur d’un environnement verdoyant et connecté, la résidence affirme un positionnement haut de gamme avec des façades en pierre naturelle massive, signature d’une architecture pérenne et qualitative. Le programme propose des appartements du studio au 5 pièces, pensés pour répondre aussi bien aux investisseurs qu’aux accédants à la recherche d’une résidence principale de grand standing. De nombreux logements disposent de séjours traversants ou d’une double orientation, offrant une luminosité optimale et un confort de vie recherché. Les appartements bénéficient également de belles hauteurs sous plafond, à partir de 2,70 m, et se prolongent par de généreuses terrasses ou loggias, avec des vues sur le patio ou le cœur d’îlot paysager. Les prestations confirment le niveau d’exigence de la résidence : parquet massif, WC suspendus, raccordement au réseau urbain pour le chauffage et l’eau chaude sanitaire, ainsi qu’une démarche NF Habitat HQE, garantissant un habitat sain, agréable à vivre et des charges maîtrisées. Ce futur quartier, idéal pour les familles, accueillera un groupe scolaire, une crèche, des commerces, un vaste parc paysager et des pistes cyclables, à proximité directe du cluster scientifique international de Paris-Saclay. *source : Google Maps** soucre : https://www.grandparisexpress.fr
Autres logements T4 du programme "PATIO SATORY-L3"
| Disponibilité | Prix | No | Genre | Pièces | Surface | Étage | Disponibilité | Prix | ||
|---|---|---|---|---|---|---|---|---|---|---|
| Voir | Disponible | 495 000€ | A002 | Appt. | T4 | 81.65m2 | 0-RDC | Disponible | 495 000€ | Voir |
| Voir | Disponible | 556 000€ | A101 | Appt. | T4 | 81.55m2 | 0-RDC | Disponible | 556 000€ | Voir |
| Voir | Disponible | 549 000€ | A106 | Appt. | T4 | 83.87m2 | 0-RDC | Disponible | 549 000€ | Voir |
| Voir | Disponible | 546 000€ | A201 | Appt. | T4 | 81.65m2 | 0-RDC | Disponible | 546 000€ | Voir |
| Voir | Disponible | 538 000€ | A202 | Appt. | T4 | 81.65m2 | 0-RDC | Disponible | 538 000€ | Voir |
| Voir | Disponible | 559 000€ | A206 | Appt. | T4 | 83.87m2 | 0-RDC | Disponible | 559 000€ | Voir |
| Voir | Disponible | 557 000€ | A301 | Appt. | T4 | 81.55m2 | 0-RDC | Disponible | 557 000€ | Voir |
| Voir | Disponible | 549 000€ | A302 | Appt. | T4 | 81.65m2 | 0-RDC | Disponible | 549 000€ | Voir |
| Voir | Disponible | 571 000€ | A306 | Appt. | T4 | 83.87m2 | 0-RDC | Disponible | 571 000€ | Voir |
| Voir | Disponible | 567 000€ | A401 | Appt. | T4 | 81.55m2 | 0-RDC | Disponible | 567 000€ | Voir |
| Voir | Disponible | 574 000€ | A406 | Appt. | T4 | 83.02m2 | 0-RDC | Disponible | 574 000€ | Voir |
| Voir | Disponible | 506 000€ | B002 | Appt. | T4 | 81.65m2 | 0-RDC | Disponible | 506 000€ | Voir |
| Voir | Disponible | 536 000€ | B101 | Appt. | T4 | 81.55m2 | 0-RDC | Disponible | 536 000€ | Voir |
| Voir | Disponible | 530 000€ | B105 | Appt. | T4 | 83.87m2 | 0-RDC | Disponible | 530 000€ | Voir |
| Voir | Disponible | 546 000€ | B201 | Appt. | T4 | 81.55m2 | 0-RDC | Disponible | 546 000€ | Voir |
| Voir | Disponible | 560 000€ | B205 | Appt. | T4 | 83.87m2 | 0-RDC | Disponible | 560 000€ | Voir |
| Voir | Disponible | 556 000€ | B301 | Appt. | T4 | 81.55m2 | 0-RDC | Disponible | 556 000€ | Voir |
| Voir | Disponible | 570 000€ | B305 | Appt. | T4 | 83.87m2 | 0-RDC | Disponible | 570 000€ | Voir |
| Voir | Disponible | 566 000€ | B401 | Appt. | T4 | 81.55m2 | 0-RDC | Disponible | 566 000€ | Voir |
| Voir | Disponible | 564 000€ | B402 | Appt. | T4 | 81.65m2 | 0-RDC | Disponible | 564 000€ | Voir |
| Voir | Disponible | 578 000€ | B406 | Appt. | T4 | 83.87m2 | 0-RDC | Disponible | 578 000€ | Voir |