Prix
371 000€
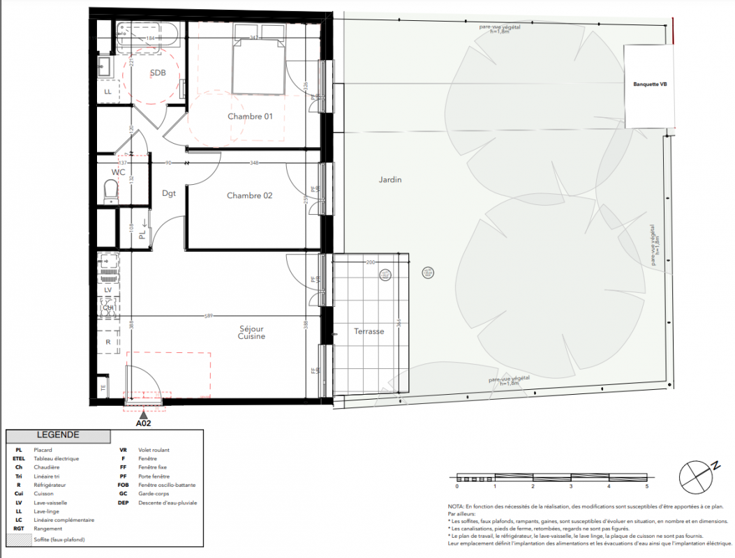
Type
Appt. au 0-RDC
Pièces
T3
Surface
56.21 m²
Exposition
-
Ville
Sartrouville (78500)
Livraison
2ème trimestre 2028
Informations
01 81 80 39 10

Présentation du programme "HORIZON"

DES PRESTATIONS HAUT DE GAMME
POUR UN CONFORT ABSOLU
La résidence HORIZON vous propose des prestations
de haute qualité pour un confort au quotidien. Le
chauffage et l’isolation répondent aux dernières normes énergétiques,
assurant une efficacité optimale et des économies d’énergie.
La sécurité n’est pas en reste avec un accès sécurisé par
vidéophone et badge, ainsi qu’un parking en sous-sol. Les espaces
verts paysagers offrent un véritable havre de paix au
coeur de la résidence, faisant d’HORIZON un lieu de
vie exceptionnel et privilégié.

Autres logements T3 du programme "HORIZON"

Disponibilité Prix Genre Pièces Surface Étage
Voir
Disponible
403 000€ Appt. T3 66.45m2 1er
Voir
Optionné
435 000€ Appt. T3 67.86m2 2ème
Voir
Disponible
385 000€ Appt. T3 63.22m2 1er
DO NOT CLICK