201 000€
Appt. au 2ème
T2
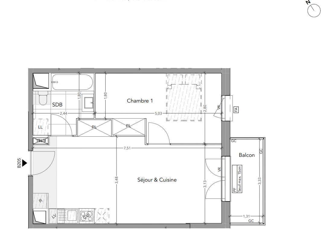
43.36 m²
-
Mantes-la-Jolie (78200)
4ème trimestre 2028
01 81 80 39 10
Présentation du programme "CONFIDENCE"
DEVENEZ PROPRIÉTAIRE DU 2 AU 4 PIÈCES, EN CENTRE-VILLE DE MANTES-LA-JOLIE : VOTRE APPARTEMENT NEUF 3 PIÈCES AVEC TERRASSE À 886,80 €/MOIS**, SOIT 215 000 €**, DANS UN CADRE DE VIE INTIMISTE À 5 MIN* DE LA GARE DE MANTES STATION.
Grâce au Prêt à Taux Zéro** en zone A, augmentez votre capacité d’achat en bénéficiant d’un emprunt à taux 0 % pouvant atteindre jusqu’à 180 000 €, soit 50 % de l’acquisition de votre futur appartement**, tout en profitant des frais de notaire réduits dans le neuf et des meilleures performances énergétiques pour un confort durable.
JUSQU'À 16 000 € DE REMISE POUR LES 5 PREMIERS RÉSERVATAIRES** !
(Les prix affichés comprennent l'offre de remise)
VOTRE APPARTEMENT NEUF 2 PIÈCES AVEC TERRASSE À 734,20 €/MOIS**, SOIT 178 000 €**
VOTRE APPARTEMENT NEUF 4 PIÈCES AVEC TERRASSE À 1 113,66 €/MOIS**, SOIT 270 000 €**
Fort de son savoir-faire de plus de 50 ans en immobilier résidentiel, European Homes imagine pour vous un cadre de vie moderne et serein au cœur de Mantes-la-Jolie.
UNE ADRESSE STRATÉGIQUE AUX PORTES DU GRAND PARIS
À seulement 35 min* de Paris Saint-Lazare (Ligne J), European Homes signe une nouvelle réalisation au 43-47 rue de Verdun. Profitez d'une connexion exceptionnelle avec deux gares à proximité immédiate, accueillant le futur RER E et la ligne 15 à l'horizon 2027***.
Vivez un quotidien facilité : écoles (Ferdinand Buisson, Chénier), complexes sportifs (Dantan, David) et commerces sont accessibles dans un rayon de 500 m*. L’A13 (gratuite vers Paris) et l’A14 placent La Défense à moins de 45 min*.
UNE RÉSIDENCE INTIMISTE, ENTRE CALME ET ÉLÉGANCE
D’architecture contemporaine inspirée du style meulière, cette nouvelle réalisation se compose de 60 appartements répartis sur deux bâtiments de seulement 3 étages. Véritable cocon d'intimité avec stationnement en sous-sol, le projet propose des logements du 2 au 4 pièces, tous prolongés par un espace extérieur privatif :
- Appartements 2 pièces de 38 m² à 46 m² avec balcon ou jardin jusqu’à 70 m². Des intérieurs cosy et optimisés, parfaits pour un premier achat ou un pied-à-terre.
- Appartements 3 pièces de 51 m² à 59 m² avec balcon, terrasse ou jardin jusqu’à 119 m². L'équilibre idéal entre confort et praticité pour une vie toujours plus épanouie.
- Appartements 4 pièces de 71 m² à 84 m² avec balcon ou jardin jusqu’à 155 m². De beaux volumes généreux pour recevoir et s'épanouir sans compromis.
MANTES-LA-JOLIE : L’ÉQUILIBRE ENTRE VILLE ROYALE ET NATURE
Surnommée la « Vil
Autres logements T2 du programme "CONFIDENCE"
| Disponibilité | Prix | No | Genre | Pièces | Surface | Étage | Disponibilité | Prix | ||
|---|---|---|---|---|---|---|---|---|---|---|
| Voir | Disponible | 195 000€ | B005 | Appt. | T2 | 42.06m2 | 0-RDC | Disponible | 195 000€ | Voir |
| Voir | Disponible | 206 000€ | B007 | Appt. | T2 | 41.05m2 | 0-RDC | Disponible | 206 000€ | Voir |
| Voir | Disponible | 186 000€ | B008 | Appt. | T2 | 39.03m2 | 0-RDC | Disponible | 186 000€ | Voir |
| Voir | Disponible | 182 000€ | B009 | Appt. | T2 | 38.76m2 | 0-RDC | Disponible | 182 000€ | Voir |
| Voir | Disponible | 190 000€ | B101 | Appt. | T2 | 42.32m2 | 1er | Disponible | 190 000€ | Voir |
| Voir | Disponible | 194 000€ | B102 | Appt. | T2 | 42.44m2 | 1er | Disponible | 194 000€ | Voir |
| Voir | Disponible | 196 000€ | B104 | Appt. | T2 | 42.71m2 | 1er | Disponible | 196 000€ | Voir |
| Voir | Disponible | 199 000€ | B105 | Appt. | T2 | 43.36m2 | 1er | Disponible | 199 000€ | Voir |
| Voir | Disponible | 191 000€ | B107 | Appt. | T2 | 42.11m2 | 1er | Disponible | 191 000€ | Voir |
| Voir | Disponible | 194 000€ | B201 | Appt. | T2 | 42.3m2 | 2ème | Disponible | 194 000€ | Voir |
| Voir | Disponible | 198 000€ | B202 | Appt. | T2 | 42.43m2 | 2ème | Disponible | 198 000€ | Voir |
| Voir | Disponible | 198 000€ | B204 | Appt. | T2 | 42.68m2 | 2ème | Disponible | 198 000€ | Voir |
| Voir | Disponible | 195 000€ | B207 | Appt. | T2 | 42.08m2 | 2ème | Disponible | 195 000€ | Voir |
| Voir | Disponible | 162 000€ | B301 | Appt. | T2 | 38.5m2 | 3ème | Disponible | 162 000€ | Voir |
| Voir | Disponible | 199 000€ | B304 | Appt. | T2 | 42.31m2 | 3ème | Disponible | 199 000€ | Voir |
| Voir | Disponible | 226 000€ | B306 | Appt. | T2 | 46.2m2 | 3ème | Disponible | 226 000€ | Voir |
| Voir | Disponible | 197 000€ | B307 | Appt. | T2 | 44.97m2 | 3ème | Disponible | 197 000€ | Voir |
| Voir | Optionné | 171 000€ | B308 | Appt. | T2 | 38.3m2 | 3ème | Optionné Mais pas encore vendu 😉 | 171 000€ | Voir |