Prix
131 000€
Type
Appt. au 2ème
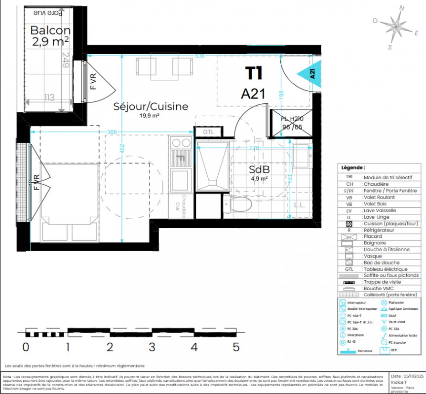
Pièces
Studio
Surface
24.8 m²
Exposition
-
Ville
Hardricourt (78250)
Livraison
1er trimestre 2028
Informations
01 81 80 39 10

Présentation du programme "Le Clos de la Montcient"

[NOUVEAU DISPOSITIF JEANBRUN : réduisez vos impôts et augmentez votre rentabilité !]

NOUVEAU A HARDRICOURT - Découvrez votre nouvelle résidence Le Clos de la Montcient, idéalement située à Hardricourt à proximité du centre-ville, de ses commerces et des établissements scolaires. La gare de Meulan Hardricourt (Ligne J) se situe à moins de 5 minutes à pied.

Résidence intimiste au style classique de seulement 17 appartements au calme en retrait de la rue. Les appartements (du studio au 3 pièces), offrent des prestations intérieures et extérieures de qualité : sol souple, volets roulants, menuiseries pvc, toiture mansart, accès sécurisés (visiophone et vigik), ascenseur, local vélos. Chaque logement est prolongé vers l'extérieur par un balcon et sera vendu avec parking inclus ( hors studios et certains 2 pièces). Performances environnementales : RE2020

Autres logements Studio du programme "Le Clos de la Montcient"

Pas de logements disponibles
DO NOT CLICK