Prix
273 300€
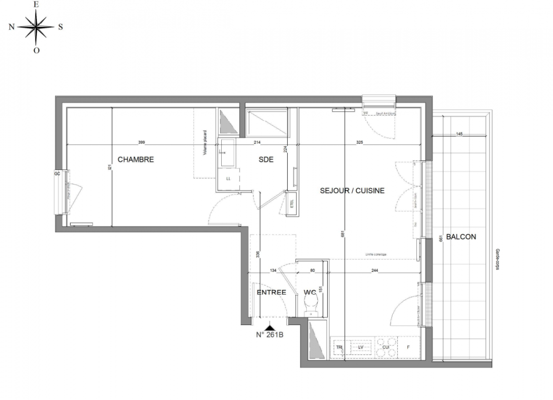
Type
Appt. au 6ème
Pièces
T2
Surface
43.27 m²
Exposition
Sud
Ville
Thiais (94320)
Livraison
4ème trimestre 2028
Informations
01 81 80 39 10

Présentation du programme "LIGNES D'ART"

Découvrez une nouvelle résidence signée Vianova à l'architecture d'inspiration année 30, parfaitement intégrée dans son environnement. Complété d'un magnifique cœur d'îlot végétalisé, elle offre un quotidien verdoyant et apaisant, idéal pour vous ressourcer. À proximité immédiate des commerces et écoles, l’adresse est à deux pas de l'arrêt "Moulin Vert" du Tramway T7, elle permet de rejoindre le métro ligne 14 "Chevilly-Larue (Marché International)" en seulement 8 minutes*.  Les appartements, du studio au 4 pièces, sont pour la plupart prolongés d'un espace extérieur : jardin, terrasse ou balcon.

Autres logements T2 du programme "LIGNES D'ART"

Disponibilité Prix Genre Pièces Surface Étage
Voir
Disponible
287 700€ Appt. T2 48.12m2 4ème
Voir
Optionné
280 000€ Appt. T2 44.88m2 6ème
DO NOT CLICK