Prix
455 000€
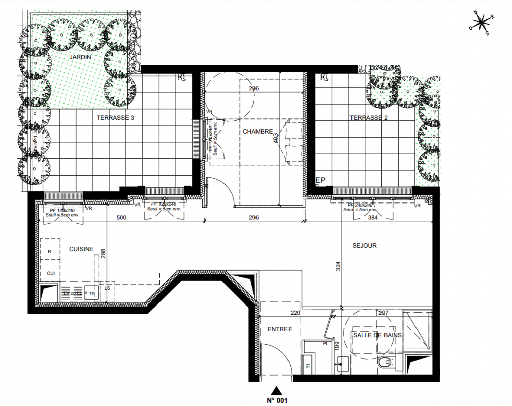
Type
Appt. au 1er
Pièces
T2
Surface
54.62 m²
Exposition
Nord-Est
Ville
Saint-Maur-des-Fossés (94100)
Livraison
1er trimestre 2028
Informations
01 81 80 39 10

Présentation du programme "COTE PARC"


Chape acoustique
Parquet chêne dans les pièces sèches
 Carrelage grand format dans les pièces humides
Faïence grand format toute hauteur sur les murs recevant des appareils sanitaires des salles de bain et salles d’eau
Meuble vasque avec miroir à partir du T3 (selon plan) et Wc suspendu
Placards aménagés
Terrasses et balcons revêtues de dalles carrelages
Menuiseries extérieures en aluminium
Volets roulants à commande électrique
Production de chaleur par équipement individuel pilotable à distance
Eau chaude sanitaire par ballon thermodynamique individuel

Autres logements T2 du programme "COTE PARC"

Disponibilité Prix Genre Pièces Surface Étage
Voir
Optionné
367 000€ Appt. T2 43.12m2 4ème
Voir
Optionné
343 000€ Appt. T2 40.93m2 2ème
DO NOT CLICK