Prix
244 000€
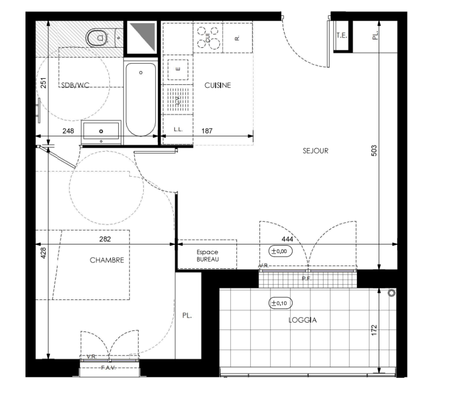
Type
Appt. au 3ème
Pièces
T2
Surface
41.62 m²
Exposition
Ouest
Ville
Orly (94310)
Livraison
3ème trimestre 2027
Informations
01 81 80 39 10

Présentation du programme "Villas du Vercors"

Orly-la-Ville, une adresse stratégique aux portes de ParisÀ 25 min* de Châtelet et du cœur de Paris, Orly-la-Ville offre une équation stratégique entre l’excellence de sa desserte en transports, le confort de son cadre de vie et des prix de l’immobilier attractifs, assurant un rendement locatif intéressant.Située dans un écoquartier verdoyant et proche du centre historique de la commune cette nouvelle résidence réunit tous les atouts d’un habitat contemporain à la fois convivial, paisible et économe. Du studio au 4 pièces, les appartements se prêtent à tous les projets locatifs en location vide ou meublée. *Source : Google Maps

Autres logements T2 du programme "Villas du Vercors"

Disponibilité Prix Genre Pièces Surface Étage
Voir
Disponible
229 000€ Appt. T2 41.61m2 1er
Voir
Disponible
239 000€ Appt. T2 40.97m2 2ème
Voir
Disponible
242 000€ Appt. T2 40.97m2 3ème