Prix
381 156€ (TVA 20%)
335 100€ (TVA 5.5%)
381 156€ (TVA 20%)
335 100€ (TVA 5.5%)
Type
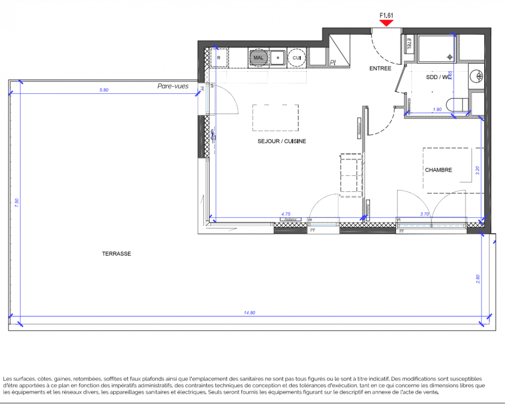
Appt. au 0-RDC
Appt. au 0-RDC
Pièces
T2
T2
Surface
45.4 m²
45.4 m²
Exposition
-
-
Ville
Fontenay-sous-Bois (94120)
Fontenay-sous-Bois (94120)
Livraison
4ème trimestre 2027
4ème trimestre 2027
Informations
01 81 80 39 10
01 81 80 39 10
Présentation du programme "LUMINE&SENS"
Du studio au 5 pièces, la quasi-totalité de nos appartements bénéficient d’un espace extérieur, terrasse ou balcon généreux, offrant une vue dégagée.De nombreux commerces et équipements publics nouvellement construits animeront votre quotidien, tandis qu’un parc paysager à proximité immédiate de la résidence vous apportera verdure, calme et sérénité. Le site profite d’une excellente desserte en transport en commun, qui facilitera vos déplacements avec le RER A et E, l’arrivée du métro (ligne 15 et prolongement de la ligne 1), ainsi que plusieurs lignes de bus. Pour les adeptes de la voiture, l’autoroute A86 est facilement accessible à quelques minutes.