Prix
253 739€  (TVA 20%)
223 079€  (TVA 5.5%)
Type
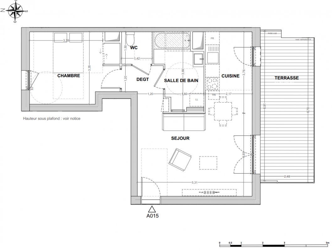
Appt. au 0-RDC
Pièces
T2
Surface
53.53 m²
Exposition
-
Ville
Cergy (95000)
Livraison
2ème trimestre 2027
Informations
01 81 80 39 10

Présentation du programme "VIVAREA"

FRAIS DE NOTAIRE OFFERTS POUR VOTRE ACHAT ! * La résidence prend place dans le quartier des Doux-Épis de la Plaine des Linandes, au coeur de l'écoquartier "Le Domaine Grandes Terres". Située à 2 km du RER Cergy Saint-Christophe, votre future résidence neuve signée Crédit Agricole Immobilier et Spirit Immobilier profite de nombreux avantages : écoles (crèche, maternelle, collège), centre commercial, salle de cinéma, commerces, salle de spectacle... Vous disposez également d'un accès immédiat à l'Aren'Park, ses commerces et restaurants, ainsi qu'à de nombreux équipements sportifs et culturels : la patinoire Aren'Ice, le parc de loisirs indoor Koezio, le complexe sportif Salif-Keïta, des cours de tennis... La résidence propose des appartements neufs, du studio au 5 pièces, organisés autour d'espaces verts partagés. Des appartements neufs « prêts à vivre » où le confort des résidents domine. L'ensemble de ce projet immobilier est éligible à la TVA réduite à 5,5% et au prêt à taux zéro. Prix indiqué stationnement inclus et remise incluse. * Conditions détaillées en espace de vente. Contactez-nous dès maintenant !

Autres logements T2 du programme "VIVAREA"

Disponibilité Prix Genre Pièces Surface Étage
Voir
Disponible
251 137€ Appt. T2 43.37m2 1er
DO NOT CLICK