Prix
204 972€
Type
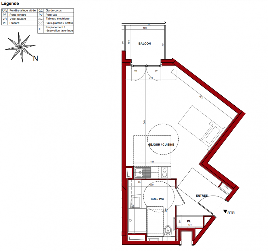
Appt. au 5ème
Pièces
Studio
Surface
34 m²
Exposition
Sud
Ville
Bouffémont (95570)
Livraison
1er trimestre 2027
Informations
01 81 80 39 10

Présentation du programme "CASTANEA"

Découvrez 'CASTANEA', une nouvelle résidence services Seniors et choisissez parmi une sélection d'appartements neufs et meublés. Vous pourrez ainsi vous construire un patrimoine sûr et garanti pour vivre ou investir ! Cette dernière, composée de 104 logements du studio au 3 pièces et proposant de nombreux services : restauration, piscine, espaces club... est gérée par un leader de la résidence services seniors Domitys. Pour toute information complémentaire, prenez contact avec nos conseillers de vente ! Pour toutes informations complémentaires, prenez contact avec nous !

Autres logements Studio du programme "CASTANEA"

Disponibilité Prix Genre Pièces Surface Étage
Voir
Disponible
206 490€ Appt. Studio 35m2 5ème
Voir
Disponible
203 909€ Appt. Studio 34m2 4ème
DO NOT CLICK