Prix
Type
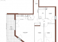
Appt. au 0-RDC
Appt. au 0-RDC
Pièces
T4
T4
Surface
85.23 m²
85.23 m²
Exposition
Sud-Ouest
Sud-Ouest
Ville
Bezons (95870)
Bezons (95870)
Livraison
3ème trimestre 2026
3ème trimestre 2026
Informations
01 81 80 39 10
01 81 80 39 10
Présentation du programme "Square Art Déco"
À deux pas de l'avenue Gabriel-Péri, le programme immobilier neuf Square Art Déco a le privilège de faire partie d'un quartier promis à un bel avenir, tirant avantage d'une profonde modernisation urbaine. Large offre de transports en commun rapidement accessibles favorisant la mobilité. Autres atouts de ce programme RT 2012 : terrasses rooftop collectives, jardins potagers communs.

