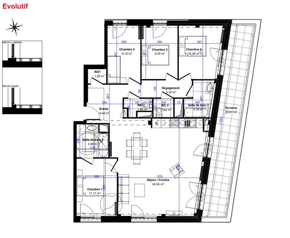
Appt. n°E1 A501

Programme "Coteau"
Prix
587 000€  (TVA 20%)
516 071€  (TVA 5.5%)
Type
Appt. au 5ème
Pièces
T5
Surface
105.1 m²
Exposition
-
Ville
Romainville (93230)
Livraison
4ème trimestre 2028
Informations
01 81 80 39 10

Présentation du programme "Coteau"

Rooj-Coteau à Romainville, un programme immobilier de deux résidences neuves au coeur du renouveau de la ZAC de l'Horloge.

Logements lumineux, double orientation, coeur d'îlot végétalisé et grands espaces extérieurs privatifs et vues dégagées.

La résidence tend vers le seuil 2028 de la réglementation environnementale 2020, ce qui signifie des logements qui consomment moins d'énergie : factures énergétiques plus faibles et logement plus performant dans le temps.

Performances environnementales élevées, matériaux durables, toitures végétalisées.

Dans un environnement naturel exceptionnel : Canal de l'Ourcq, Corniche des forts, futur jardin du Coteau Groupe scolaire neuf au pied du programme, place Jenny Alpha, marché des Bas-Pays, maison de santé, commerces de proximité sur la rue Gaston Roussel. À 10 min à pied du métro Ligne 5, et future arrivée du T Zen 3. Mobilités douces autour du Grand Chemin, nouvelle artère reliant la Corniche des Forts au canal de l'Ourcq. Un emplacement stratégique, dans un quartier en pleine transformation où la vie culturelle n'est pas en reste : Le Pavillon, médiathèque Romain-Rolland, l'annexe, le FRAC Ile-de-France...

Habiter le Coteau, c'est vivre entre ville et nature.

Autres logements T5 du programme "Coteau"

Disponibilité Prix Genre Pièces Surface Étage
Voir
Disponible
552 000€ Appt. T5 95.12m2 3ème
Voir
Disponible
431 671€ Appt. T5 97.1m2
Le bon plan
0-RDC
DO NOT CLICK