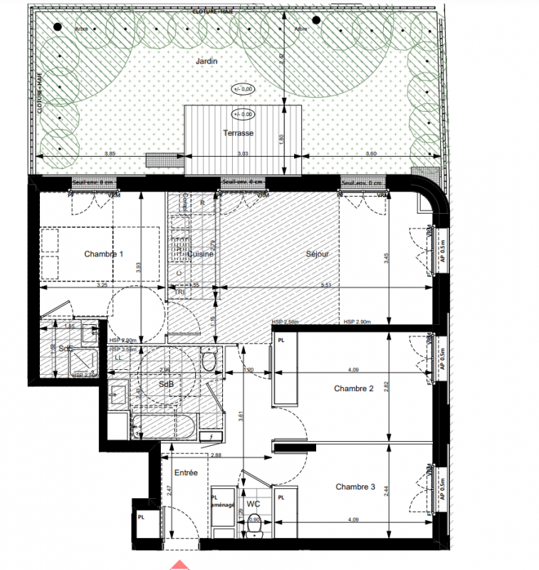
Appt. n°C1-01

Programme "NATURA"
Prix
399 000€
Type
Appt. au 0-RDC
Pièces
T4
Surface
76 m²
Exposition
Est
Ville
Noisy-le-Grand (93160)
Livraison
1er trimestre 2026
Informations
01 81 80 39 10

Présentation du programme "NATURA"

Au sein du quartier des Bas-Heurts, une nouvelle vie se dessine dans une résidence moderne et inspirée qui fait la part belle aux espaces verts.Entre la rue des Bas-Heurts et la rue des Aulnettes, NATURA se démarque par son architecture novatrice et s’intègre de manière naturelle à son environnement direct. L’ensemble de la résidence se distingue par son architecture qui met en scène les différents matériaux qui alternent entre le bois et les enduits clairs. Un rythme architectural qui donne le ton et se remarque. Avec son îlot central végétalisé, la résidence met en lumière avec brio des espaces privés et communs extérieurs. NATURA rassemble une nouvelle génération d’habitat urbain : l’intimité d’un confort intérieur sublimé par le privilège d’espaces de vie en extérieur.Jeremy DEREGNAUCOURTTél. : 07 71 63 25 08

Autres logements T4 du programme "NATURA"

Pas de logements disponibles