Prix
650 616€
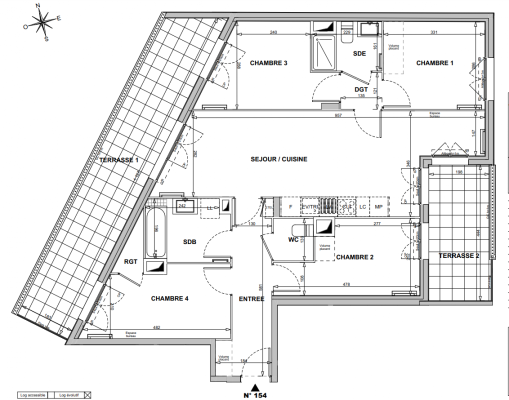
Type
Appt. au 5ème
Pièces
T5
Surface
89.55 m²
Exposition
Est
Ville
Bagnolet (93170)
Livraison
4ème trimestre 2028
Informations
01 81 80 39 10

Présentation du programme "LE 5 RASPAIL"

Aux portes de Paris, entre les lignes 3 et 11 du métro, découvrez une résidence contemporaine tout en élégance et lumière. Les appartements, du studio au 5 pièces, bénéficient de larges ouvertures et se prolongent de balcons, terrasses filantes ou solariums exclusifs. Leurs plans fluides et optimisés répondent à tous les styles de vie, intégrant, pour certains, des alcôves évolutives pour encore plus de liberté d’agencement.À distance piétonne des commerces, des écoles et du métro, profitez d’un quotidien simple, pratique et dynamique, dans une commune de l’est parisien en plein essor.

Autres logements T5 du programme "LE 5 RASPAIL"

Disponibilité Prix Genre Pièces Surface Étage
Voir
Disponible
675 640€ Appt. T5 90.77m2 6ème
DO NOT CLICK