Prix
450 427€
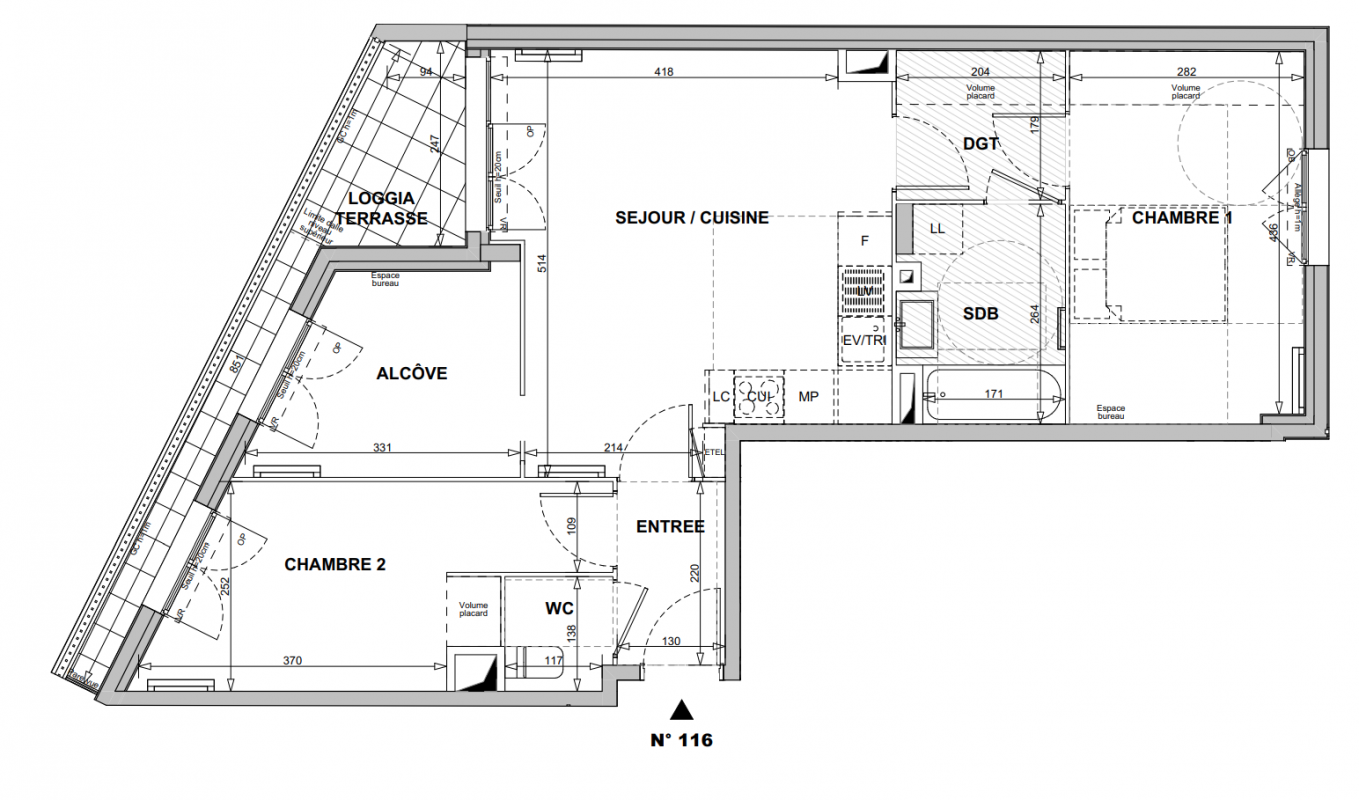
Type
Appt. au 1er
Pièces
T3
Surface
65.66 m²
Exposition
Est
Ville
Bagnolet (93170)
Livraison
4ème trimestre 2028
Informations
01 81 80 39 10

Présentation du programme "LE 5 RASPAIL"

Aux portes de Paris, entre les lignes 3 et 11 du métro, découvrez une résidence contemporaine tout en élégance et lumière. Les appartements, du studio au 5 pièces, bénéficient de larges ouvertures et se prolongent de balcons, terrasses filantes ou solariums exclusifs. Leurs plans fluides et optimisés répondent à tous les styles de vie, intégrant, pour certains, des alcôves évolutives pour encore plus de liberté d’agencement.À distance piétonne des commerces, des écoles et du métro, profitez d’un quotidien simple, pratique et dynamique, dans une commune de l’est parisien en plein essor.

Autres logements T3 du programme "LE 5 RASPAIL"

Disponibilité Prix Genre Pièces Surface Étage
Voir
Disponible
439 052€ Appt. T3 65.76m2 3ème
Voir
Disponible
433 365€ Appt. T3 65.76m2 2ème
Voir
Disponible
460 664€ Appt. T3 58.41m2 6ème
DO NOT CLICK