Prix
315 000€
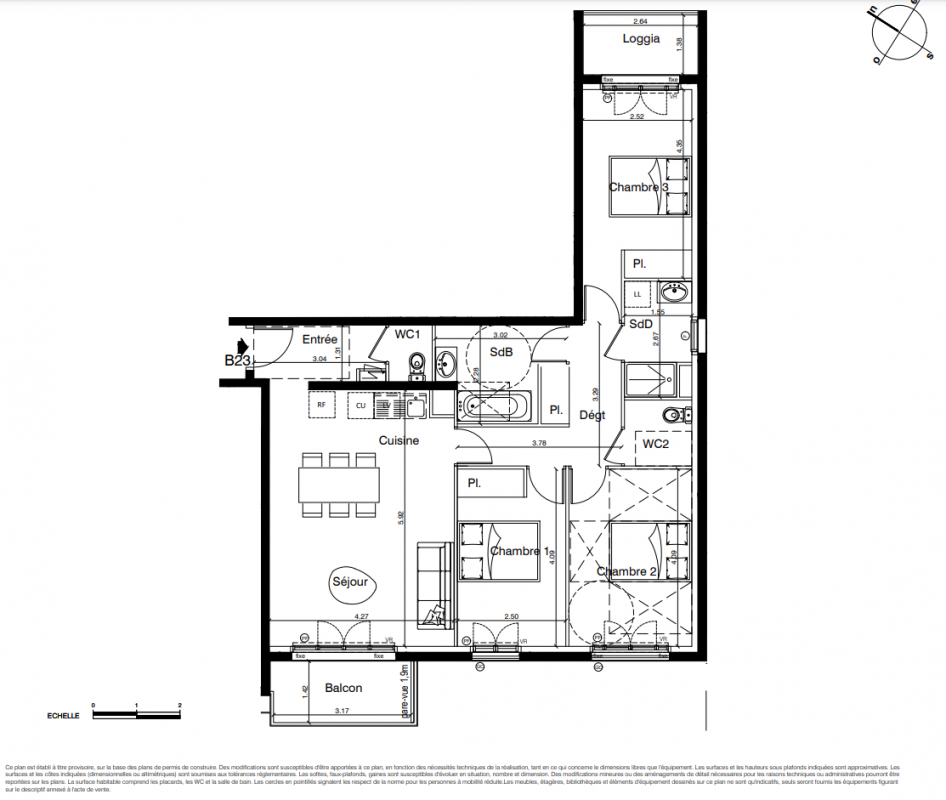
Type
Appt. au 2ème
Pièces
T4
Surface
82.54 m²
Exposition
-
Ville
Aulnay-sous-Bois (93600)
Livraison
2ème trimestre 2028
Informations
01 81 80 39 10

Présentation du programme "LE FLOREAL"

CONFORT

Revêtement de sol en lames PVC esprit parquet.
Système hybride pompe à chaleur et chaudière au gaz pour l’eau chaude et le chauffage.
Chapes acoustiques.
Salles de bains et salle d'eau équipées avec carrelage, faïences, meuble vasque avec miroir et bandeau lumineux.
Radiateurs sèche-serviettes, dans les salles de bains.
Menuiseries extérieures en aluminium à l'extérieur, double vitrage et volets roulants motorisables.
Parties communes et halls d'entrée décorés par notre architecte d'intérieur.
Locaux vélos et poussettes.
Ascenseurs desservant tous les étages.

SÉCURITÉ

Accès au sous-sol sécurisé par connecteur à clé, vigik ou code.
Accès à la résidence sécurisé par un SAS, par digicode, visiophone et badge Vigik.
Porte palière avec serrure de sûreté 3 points A2P*.

QUALITÉ

Façades traitées avec des matériaux de qualité : brique, enduit et zinc en façade, menuiseries en aluminium.
Programme conforme à la RE2020(1).

Autres logements T4 du programme "LE FLOREAL"

Disponibilité Prix Genre Pièces Surface Étage
Voir
Disponible
319 000€ Appt. T4 78.67m2 3ème
Voir
Disponible
386 000€ Appt. T4 83.46m2 4ème
Voir
Disponible
403 000€ Appt. T4 81.36m2 4ème
DO NOT CLICK