Prix
210 644€
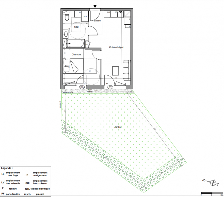
Type
Appt. au 0-RDC
Pièces
T2
Surface
40.3 m²
Exposition
-
Ville
Melun (77000)
Livraison
1er trimestre 2026
Informations
01 81 80 39 10

Présentation du programme "Be Fine"

ACHETEZ VOTRE APPARTEMENT OU VOTRE MAISON NEUFS A MELUN

Des maisons et appartements neufs au sein de l’écoquartier WOODI de Melun

Découvrez la prochaine réalisation neuve de Vianova à Melun en Seine-et-Marne. Commune en pleine mutation, Melun est concernée par de grands projets urbains dont l’écoquartier WOODI qui met à l’honneur l’écologie et la biodiversité pour une meilleure qualité de vie. WOODI rassemble tous les commerces et services d’un cœur de ville : groupe scolaire, crèche, équipements sportifs, conciergerie, et forêt de 13 ha.
Situé à 40 min. de Paris et 12 min. en voiture du RER D, l’écoquartier est d’ores et déjà desservi par une ligne de bus. Il sera desservi en 2024 par les futures stations TZen2 reliant WOODI à la Gare de Melun en 15 min.*.
Découvrez l'écoquartier en vidéo sur la page quartier woodi.


Confort, convivialité et qualité de vie à Melun

Située au cœur de l’écoquartier, votre nouvelle résidence signée Vianova, vous offre un accès rapide à tous ses équipements à venir et aux services alentour.
‘’Be Fine’’ propose des maisons 5 pièces et des appartements du studio au 5 pièces, tous prolongés par une belle surface extérieure et organisés autour d’un grand cœur d’ilot. Tous les appartements bénéficieront d’une place de stationnement (sauf les studios) et les maisons d’un garage.
Et pour vous garantir une réduction de vos consommations d'énergie, votre future résidence sera labellisée RT 2012 - 20% et votre logement sera raccordé au chauffage collectif urbain en géothermie.
L’ensemble de l’opération sera éligible à la TVA réduite à 5,5%(3).

* source : Google Maps
** source : www.tzen2.com


Promoteur national et tout particulièrement présent en Ile-de-France depuis plus de 25 ans, Vianova vous propose, en tant qu’expert de la promotion immobilière, la résidence Be Fine située à Melun. N’hésitez pas à nous contacter pour votre projet de résidence principale ou d’investissement locatif en VEFA à Melun.

Autres logements T2 du programme "Be Fine"

Pas de logements disponibles
DO NOT CLICK