Ce lot n’est plus disponible chez VIANOVA ou est vendu.

Vous pouvez revenir dans 24h pour vérifier le stock à jour ou contacter un conseiller Vianova pour vérifier le stock en direct.
Vous pouvez également continuer votre recherche sur notre site « ici ».

Prix
569 000€
Type
Appt. au 1er
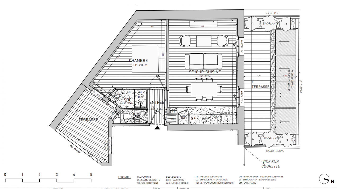
Pièces
T2
Surface
41.91 m²
Exposition
-
Ville
Paris 17ème (75017)
Livraison
1er trimestre 2025
Informations
01 81 80 39 10

Présentation du programme "Le 58 Guy Moquet"

La Résidence
La résidence "Le 58 Guy Moquet" est situé au cœur du quartier vivant et recherché du 17e arrondissement. La rue Guy Moquet est un axe qui accueille de beaux immeubles haussmanniens et un tissu de commerces et services qualitatifs.
Le projet du 58 Guy Moquet est une petite copropriété de 9 logements seulement. Il séduit par le charme de l’ancien qui se conjugue aux avantages du neuf !

Les atouts 
En effet, il s’agit d’un projet sus le régime de la VIR (vente immobilier rénové) qui vous permet de bénéficier des frais de notaire réduits comme dans le neuf. Les travaux de rénovation lourde seront terminé fin Janvier 2025.
Parfait pour un premier achat ou un investissement locatif, ce bien combine un agencement optimisé et une situation privilégiée dans un secteur dynamique de la capitale.

A proximité 

A 150m du métro (ligne 13)
A moins de 100m du bus (ligne 31)

Autres logements T2 du programme "Le 58 Guy Moquet"

Pas de logements disponibles
DO NOT CLICK