Prix
2 650 000€
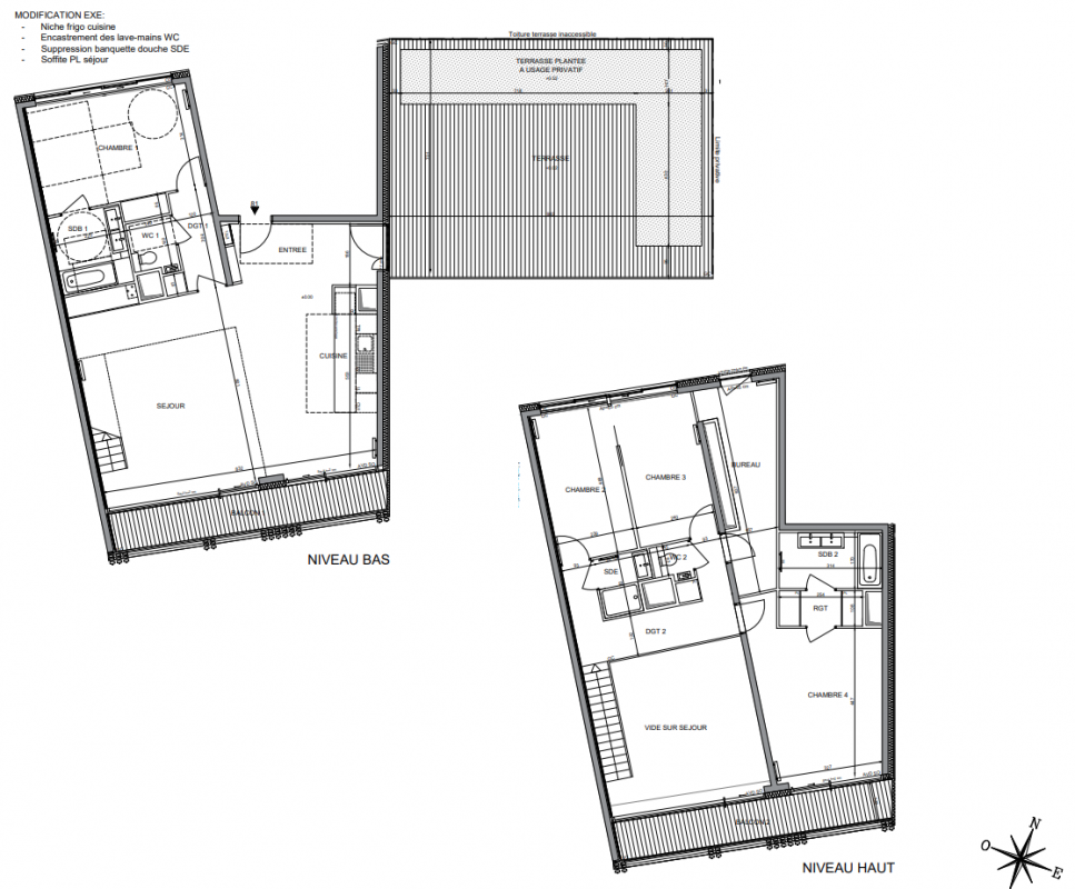
Type
Appt. au 8ème
Pièces
T5
Surface
160.9 m²
Exposition
-
Ville
Paris 15ème (75015)
Livraison
1er trimestre 2025
Informations
01 81 80 39 10

Présentation du programme "SCENE PLEIN CIEL"


34 appartements avec balcons et terrasses
De 2 à 5 pièces
2 duplex avec toit-terrasse
Des volumes très contemporains, ouverts et lumineux
Des extérieurs spacieux avec, en étage, vues panoramiques sur Paris et la tour Eiffel
Double entrée avec interphone
Cellier à l’entresol pour poussettes et vélos accessible par ascenseur
16 parkings dans l’immeuble voisin

Prestations haut de gamme : (à voir si possible de compléter)

Parquet massif dans les séjours
Carrelage en grès cérame rectifié, 60x60 dans les pièces d’eau
Sols des balcons en béton lisse ou bois
Vasques encastrées
Robinetterie Grohe
Système domotique pilotable depuis un smartphone

Autres logements T5 du programme "SCENE PLEIN CIEL"

Disponibilité Prix Genre Pièces Surface Étage
Voir
Optionné
2 120 000€ Appt. T5 132.1m2 7ème
Voir
Optionné
3 150 000€ Appt. T5 193.9m2 10ème
DO NOT CLICK