Ce lot n’est plus disponible chez VIANOVA ou est vendu.

Vous pouvez revenir dans 24h pour vérifier le stock à jour ou contacter un conseiller Vianova pour vérifier le stock en direct.
Vous pouvez également continuer votre recherche sur notre site « ici ».

Prix
226 000€
Type
Appt. au 2ème
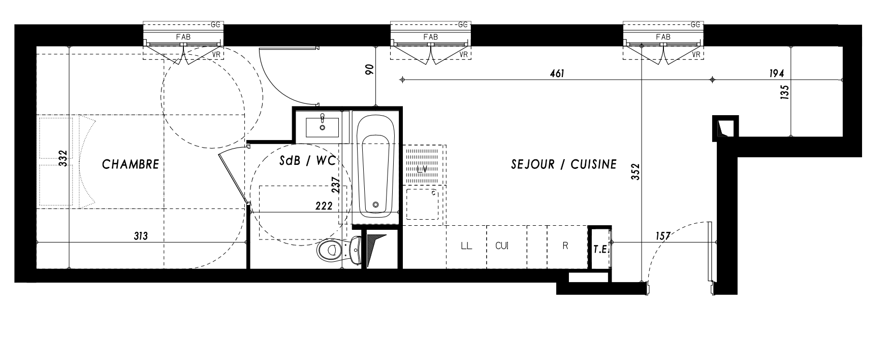
Pièces
T2
Surface
35.3 m²
Exposition
Nord
Ville
Yerres (91330)
Livraison
1er trimestre 2027
Informations
01 81 80 39 10

Présentation du programme "Villa Arcadia"

Une adresse au charme authentiqueInvestir à Yerres, c’est miser sur une ville privilégiée d’Essonne, à la notoriété porteuse. Villégiature historique d’aristocrates et de grands bourgeois, cette commune cossue séduit par la richesse de son patrimoine, ses espaces verts généreux et son atmosphère familiale. Un environnement préservé, idéalement situé à 20 km* de Paris, au carrefour des bassins d’emplois de l’arc sud. L’aéroport d’Orly se trouve à 9 km*, de même que Créteil, pôle majeur des institutions publiques et universitaires du Val-de-Marne. De l’autre côté de la Forêt Sénart, le long de la Francilienne, fleurissent les zones économiques dynamiques du Carré Sénart à Évry. Promis à une valorisation certaine, votre investissement vous permet d’optimiser votre fiscalité pendant 6, 9 ou 12 ans grâce au dispositif Pinel (zone A). 

Autres logements T2 du programme "Villa Arcadia"

Pas de logements disponibles