400 000€
Appt. au 2ème
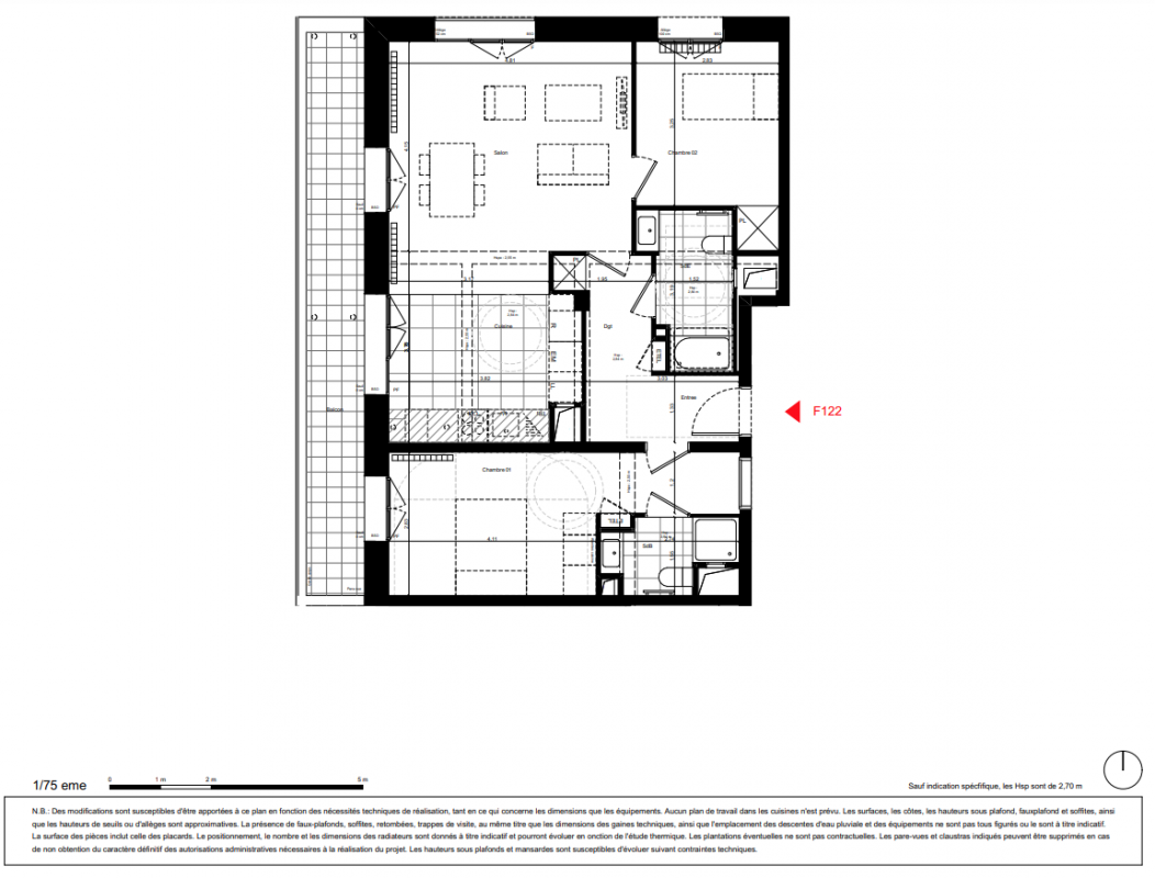
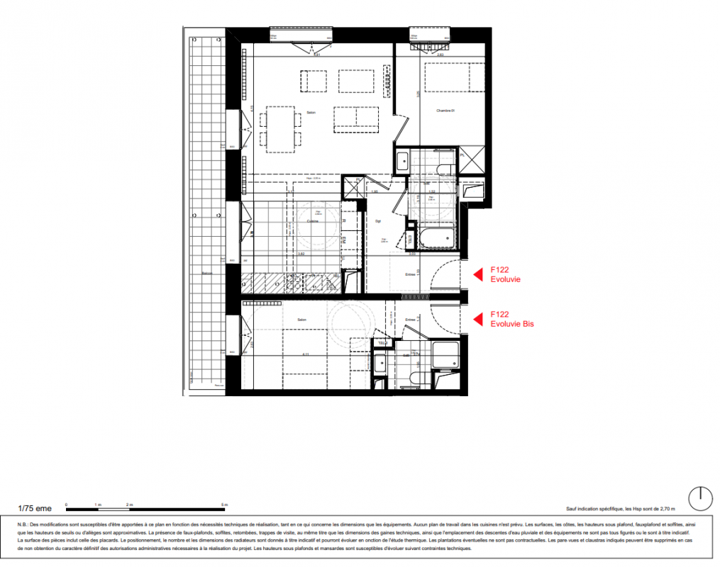
T3
73.92 m²
Nord-Ouest
Palaiseau (91120)
3ème trimestre 2026
01 81 80 39 10
Présentation du programme "QUIETUDE - LE CENTRAL"
Habitez LE CENTRAL, Le nouveau quartier animé, innovant et écoresponsable du campus d'excellence Paris-Saclay ! Un quartier où vous profitez des commerces au pied de votre chez vous. Un lieu de vie et de travail au sein d'un véritable cluster du savoir (grandes écoles, laboratoires de recherche, entreprises). Une adresse dotée de tous les services facilitant votre quotidien (futur métro 18, pôle médical, crèche). Pour les loisirs, restaurants, cafés et espaces partagés rythmeront la vie de quartier... Ici, tout est conçu pour s'installer paisiblement en ville et s'épanouir en famille. Découvrez prochainement la nouvelle résidence Quiétude au sein de ce quartier, des appartements uniques du studio au 5 pièces durables et économes en énergie. Chaque logement se compose d'une entrée avec placard, d'un vaste séjour sur cuisine ouverte (équipement en option), d'un balcon, d'une loggia, d'une terrasse ou d'un jardin ouvert sur le cœur d'îlot paysager, d'une salle de bains équipée et d'une place de parking. La conception favorise l'espace et la lumière les espaces à vivre (double ou triple exposition), et intègre des prestations soignées : réseau de chaleur urbain, menuiseries en bois ou bois-aluminium, revêtement en stratifié ou en contrecollé, vidéophone, parking privatif. Les appartements offriront des performances énergétiques élevées pour assurer un bien-être durable, un confort thermique et acoustique de pointe. Vous souhaitez devenir propriétaires ? Vous profitez ici d'un cadre de vie urbain unique bientôt connecté directement à Paris (métro 18) et d'un logement bien conçu, spacieux, lumineux et performant dans un cadre urbain et nature. Ou souhaitez devenir investisseurs ? Réalisez ici un investissement pertinent pour préparer votre retraite. Bénéficiez du dispositif Pinel sur cette résidence située en zone B (le non-respect des engagements de location entraîne la perte du bénéfice des incitations fiscales. Investir dans l'immobilier comporte des risques).

