Prix
251 000€
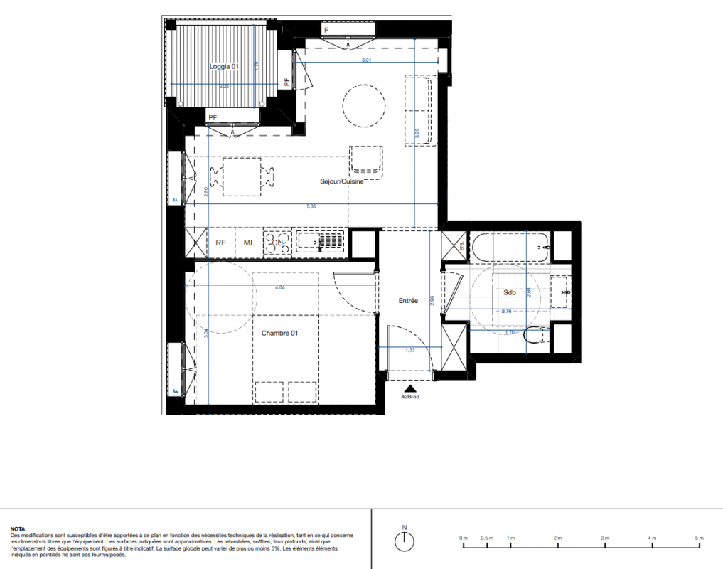
Type
Appt. au 5ème
Pièces
T2
Surface
42.1 m²
Exposition
-
Ville
Orsay (91400)
Livraison
1er trimestre 2028
Informations
01 81 80 39 10

Présentation du programme "LE CLOS DE CORBEVILLE"

REVÊTEMENTS DE SOLS (SAUF SDB ET WC)
* Revêtement stratifié, en option parquet et carrelage
* Espaces extérieurs privatifs (loggias, balcons)
 
SALLES DE BAIN Sol :
* carrelage en grès cérame de 60 x 60 cm
* Murs au droit des douches/baignoires : faïence murale 25 x 75 cm jusqu’à hauteur d’huisserie
*Meuble-vasque avec miroir rétroéclairé
*Baignoire : 170 x 70 cm, ou receveur de douche extraplat
*Sèche-serviettes électrique
 
AUTRES ÉQUIPEMENTS
* Radiateurs basse consommation
*Pour les logements du bâtiment T1 : brise-soleil à lames orientables.
*Pour les logements du bâtiment T2 : store en toile
*Place de stationnement en sous-sol à partir du 2 pièces
*Vidéophone sur le téléphone (application)
* Chape acoustique

Autres logements T2 du programme "LE CLOS DE CORBEVILLE"

Pas de logements disponibles
DO NOT CLICK